2.3 Ny tagkonstruktion
En helt ny tagkonstruktion bliver aktuel, hvis det af den ene eller anden grund ikke er muligt eller ønskeligt at genbruge den eksisterende konstruktion. Det er også aktuelt i de tilfælde, hvor der bygges en helt ny etage. Den nye tagkonstruktion kan som udgangspunkt udformes helt frit, forudsat at en eventuel lokalplan ikke sætter begrænsninger.
Byggeskadefondene oplever relativt ofte eksempler på stabilitetsproblemer i nye tagkonstruktioner opført på bygninger med flade tage i forbindelse med etablering af tagboliger. Det må derfor anbefales, at man er særlig opmærksom på dette forhold.
Følgende ønsker kan være styrende for udformningen af den nye tagkonstruktion:
Taget skal tilføre bygningen energi vha. solfangere eller lignende.
Udseendet skal tilpasses kvarterets bygninger.
Bygningens arkitektur skal nyfortolkes, hvilket ofte kan være aktuelt, når den eksisterende bygning har fladt tag.
2.3.1 Tilpasning til den eksisterende bygnings konstruktion
Det vigtigste, man skal være opmærksom på, når man etablerer en ny tagkonstruktion, er, at den passer ind i den eksisterende bygnings konstruktion:
Spærdimensionerne skal afpasses efter såvel bygningens bredde (facade til facade), som den last, der skal overføres.
Spærene skal forbindes til etageadskillelsen og forankres stabilt nedefter.
Typisk vil øverste etageadskillelse således udgøre spærenes trækbånd, uanset om etageadskillelsen er et betondæk eller et træbjælkelag. I sidstnævnte tilfælde forudsætter det normalt, at spærene placeres med samme afstand som bjælkerne. I princippet kan man vælge en anden løsning, men det ses meget sjældent i nyt byggeri. Figur 48 viser forskellige mulige placeringer af hovedspærfag i forhold til tagbjælker. Samlingerne mellem etageadskillelse og spær samt en eventuel rem er vigtige detaljer. Se bl.a. TRÆ 28 (Johansen, 2006).
Figur 48. Forskellige placeringer af hovedspærfag i forhold til tagbjælker. Kilde: SBI-rapport 142 (Engelmark, 1983).
Når en ny tagkonstruktion etableres vil der, uanset tagform, være behov for at lade gavltrekanten understøtte af tagkonstruktionen, svarende til forholdene i moderne ejendomme.
Et københavnertag eller et asymmetrisk tag er ikke stabilt i sig selv. I de tilfælde er det derfor nødvendigt at udnytte gavltrekantens afstivende virkning, ligesom det kan vise sig nødvendigt at forhøje trappevæggene for at afstive tagkonstruktionen. Samtidig skal skivevirkningen i selve tagfladen sikres. Alternativt må den afstivende virkning sikres ved at indbygge stålrammer i tagkonstruktionen. En sådan løsning kan resultere i ret store reaktioner, som det kan være vanskeligt at aflevere på murkronen. Løsningen kan også begrænse mulighederne for indretning af tagetagen. En asymmetrisk tagform kan fx skyldes, at tagkonstruktionen er forhøjet med en ekstra etage mod gården (som i eksempel 13 i eksempelsamlingen på www.sbi.dk/tagboliger).
Moderne spærhoveder er normalt meget slanke, og de skal afstives for tre lasttyper:
vindlast på det færdige hus, især tryk og sug på gavltrekanter.
trykkraft fra sne og egenlast. Sne og egenlast giver en betydelig trykkraft i spærhovederne, som derfor virker som søjler.
vindlast under opførelsen.
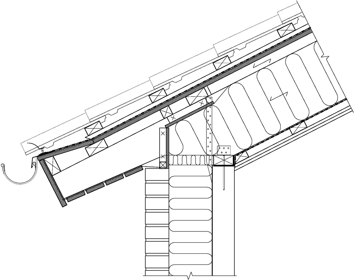
Ved tage med fast undertag bestående af en pladebeklædning beklædt med tagpap, kan undertaget udnyttes til at afstive spærene mod vindpåvirkning. Det skal imidlertid sikres, at kræfterne overføres til remmen på en måde, der sikrer en tilstrækkelig ventilation af taget. Det kan gøres som vist på figur 49.
Figur 49. Tagdetalje ved tagfod. Kilde: Træinformation. TræCAD (2009).
Ved tage med banevare som undertag kan man afstive med lægter eller med trækbånd. Når der skal placeres vinduer i tagfladen er afstivning med lægter mest egnet, da denne afstivning kan udføres stejlere. TRÆ 52 (Munch-Andersen & Lund Johansen, 2005) viser forskellige løsningsmodeller baseret på disse afstivningstyper. I figur 50 er vist et eksempel fra en igangværende revision af TRÆ 52.
Figur 50. Afstivning af hanebåndsspær med gitterbjælker og skråafstivning med lægter. Der anvendes en eller to skråafstivninger pr. tagflade, afhængig af tagets størrelse. Kilde: Udkast til Træspær 2, 2. udgave, Træinformation, 2009.
Figur 51. Eksempel på udførelse af skråafstivning ved hanebåndsbjælke og tagfod.
Kilde: Udkast til Træspær 2, 2. udgave, Træinformation, 2009.
Ved tage med banevare som undertag skal man også sikre en fornuftig overføring af kræfterne fra afstivningen til remmen. Et eksempel er vist i figur 51.
2.3.2 Opbygning af ny tagkonstruktion
Den nye tagkonstruktion udføres som regel med en vis hældning. Enten fordi den gamle konstruktion var udført med hældning, eller fordi etableringen af tagboliger sker ud fra ønsket om at erstatte et eksisterende fladt tag med et tag med hældning og dermed forbedre afvandings- og isoleringsforholdene. Konstruktionen vil typisk blive udført som et koldt tag, dvs. med isoleringen inde i konstruktionen, så den yderste del af den bærende konstruktion bliver kold om vinteren.
Det kolde tag udføres sædvanligvis som en ventileret konstruktion, dvs. med en ventilationsspalte mellem undertag og isolering, hvor ventilation sker gennem ventilationsåbninger ved tagfod, ved kip, ved gavle og lignende, se SBi-anvisning 224, Fugt i bygninger (Brandt et al., 2009). Isoleringsmaterialer vil på baggrund af tykkelsestolerancekrav i produktstandarderne normalt blive leveret med en vis overhøjde. Derved er der risiko for, at den effektive ventilationsspalte formindskes. I praksis vil overhøjden typisk kunne ligge på op til ca. 5 % ved etlags isolering, mens den ved flerlagsløsninger kan nå op på 8-10 %. Ved projektering af ventilerede undertage skal man derfor ved fastlæggelse af konstruktionshøjden tage hensyn til isoleringsmaterialets eventuelle overhøjde. Dette gøres ved enten at projektere med den angivne overhøjde, eller ved at fastholde isoleringsmaterialet med ∆ 2 mm ståltråd pr. 300 mm.
En effektiv ventilation er vigtig for at undgå fugtproblemer, hvilket først og fremmest sikres ved et tilstrækkeligt tværareal og en hensigtsmæssig fordeling af ventilationsåbningerne. Ved overgang mellem tagflader med forskellig hældning, fx ved mansardtag eller københavnertag, skal man ligesom ved tagfod sikre, at ventilationen kan foregå uhindret. Ligeledes er det vigtigt at forhindre fugttilførsel indefra til isoleringslaget ved at definere og udføre korrekt dampspærre og lufttætning.
Taget kan også udføres uventileret som præfabrikerede tagelementer. En sådan løsning bør normalt kun anvendes i samråd med en fugtsagkyndig rådgiver.
I øvrigt adskiller opbygningen af tagkonstruktionen sig ikke fra en tagkonstruktion i et nybyggeri, hvorfor der henvises til den gængse litteratur på området. Man skal som altid, når det gælder tagkonstruktioner, sikre sig, at lægtningen er udført korrekt, at indtrængende vand kan ledes væk under de tværgående lægter, samt at fugt kan ventileres bort.
Ligeledes skal lægteafstanden afpasses efter det materiale, der benyttes som tagdækning. Det er også vigtigt at holde styr på lægtestød for at sikre, at vind- og snelast kan overføres til spærene. På www.godetage.dk beskrives, hvordan lægtestød skal placeres afhængig af bygningsbredden for at opnå den nødvendige styrke.
Se også afsnit 1.0.1, Taget som klimaskærm.
2.4 Vægge
Vægge i tagetagen omfatter lodrette lejlighedsskel mellem boliger eller mellem bolig og trapperum og skillevægge i tagboligen. Afhængig af tagformen kan tagetagen også rumme ydervægge.
Dette afsnit omhandler særlige konstruktive forhold ved vægge, herunder åbninger og gennemføringer i vægge, mens der henvises til afsnit 2.7, Lydisolering, afsnit 1.3, Varmeisolering, og afsnit 2.6, Brandsikring, for beskrivelse af øvrige forhold.
Lodrette lejlighedsskel vil normalt fungere som bærende og afstivende vægge. Ydervægge og skillevægge kan være udført som bærende og afstivende vægge, som afstivende vægge eller som ikke-bærende vægge, afhængig af deres placering og funktion.
2.4.1 Ældre vægges opbygning
Frem til 1890 blev der ikke skelnet mellem bærende og afstivende indervægge og ikke-bærende indervægge. Efter 1890 kom der krav om, at bjælkelagsbærende indervægge skulle udføres af grundmur, hvorefter brugen af bindingsværk i indervægge ophørte, se SBI-rapport 142 (Engelmark, 1983). Indervægge blev nu udført under hensyntagen til deres funktion som bærende eller ikke bærende vægge. Fx blev bærende og afstivende vægge omkring trapperum grundmurede. Tværgående indervægge blev oprindeligt udført som bræddeskillevægge med to lag brædder, men senere kom andre typer til. Bjælkelagsbærende vægge skulle fra 1890 være 1 sten tykke (1½ sten i kælderen). Betonelementer har siden afløst de murede vægge som bærende og afstivende indervægge i etageboligbyggeri.
2.4.2 Sammenbygning med tag/etageadskillelse
Etablering af tagboliger vil give en øget belastning af de bærende og afstivende vægge, men i de fleste tilfælde vil det ikke give problemer for bygningens bæreevne.
Udformningen af sammenbygningen mellem væg og tag/etageadskillelse vil afhænge af, om væggen er en bærende og afstivende væg, en bærende væg, en afstivende væg eller en ikke-bærende væg. Er der tale om en væg, der fungerer som adskillelse mellem to selvstændige tagboliger, skal den også af lyd- og brandmæssige årsager udformes med omhu. Se afsnit 2.7, Lydisolering, og afsnit 2.6, Brandsikring.
Etablerer man tagboliger i bygninger, hvor et eksisterende københavnertag bevares, skal man være opmærksom på, at man ikke i samme omfang som ved andre tagformer kan fjerne eller placere lette vægge (skillevægge) frit. Det skyldes væggenes afstivende funktion, og det er særlig kritisk de steder, hvor det er nødvendigt at lave større udvekslinger af spær for at få plads til kviste og lignende. Det er muligt at flytte eller fjerne enkelte skillevægge, hvis man bibeholder et vist antal som afstivende. Det er til gengæld meget vigtigt at kontrollere, hvorvidt det er nødvendigt at disse bliver forankret lodret til en underliggende stabiliserende konstruktion og i så fald sikre, at de forankres. Det er især aktuelt ved korte lette skillevægge.
Ofte vil de eksisterende vægge på loftetagen være spinkle pulterrumsvægge, som ikke egner sig som vægge i en tagbolig. Man vil da fjerne alle vægge og i stedet indbygge gipsvægge. Denne operation skal i givet fald ske med hensyntagen til væggenes funktion, som beskrevet ovenfor.
Ønsker man at fjerne hele vægge eller dele af en væg, skal man være særlig opmærksom, hvis væggen indgår i bygningens stabiliserende system. Hvis væggen er bærende, er det nødvendigt at kompensere rent styrkemæssigt for den del af væggen der fjernes. Det kan som regel ske ved at indlægge en stålbjælke over åbningen. Man skal sikre, at stålbjælken har et ordentligt vederlag, og at den understøttende konstruktion har tilstrækkelig styrke. Desuden skal stålbjælken brandisoleres. Se afsnit 2.6, Brandsikring.
I det omfang det er nødvendigt at placere gennemføringer i vægge, skal de udføres, så de ikke svækker væggen hvad angår lydisolering og brandsikring. Det betyder konkret, at udsparinger i vægge skal være så små som muligt, og at gab mellem vægge og gennemføringer skal lukkes tæt. Man skal være opmærksom på, at gennemføringen i sig selv kan lede både brand og lyd. Ligeledes skal man sikre, at gennemgang af gas, røg og lugt hindres, se BR08, kap. 8.1, stk. 2 (Erhvervs- og Byggestyrelsen, 2009).
I vådrum skal rørgennemføringer i vægge desuden være vandtætte i den vandbelastede del af vådrummet, også kaldet vådzonen, se By og Byg Anvisning 200, Vådrum (Brandt, 2001).
2.5 Etageadskillelse
Etageadskillelsen har indtil etableringen af tagboliger enten fungeret som en etageadskillelse mellem en beboet etage og et ubeboet loftrum eller som underlag for et fladt tag el.lign.
Uanset om tagboliger etableres i et eksisterende loftrum eller som en ny etage, vil det stille ændrede krav til etageadskillelsen, fordi denne fremover vil være adskillelse mellem to beboede etager. Det stiller bl.a. krav til de brand- og lydmæssige forhold, se afsnit 2.6, Brandsikring og afsnit 2.7, Lydisolering. Hertil kommer behovet for gennemføringer i etageadskillelsen, se afsnit 2.5.4, Gennemføringer i etageadskillelsen.
I tilfælde af, at der etableres tagterrasser på hele eller dele af etageadskillelsen, er der en række særlige krav til opbygningen af konstruktionen, se afsnit 2.5.5, Tagterrasser og altaner.
2.5.1 Eksisterende byggeri
Etageadskillelsen vil i etageejendomme opført frem til 1950 primært være udført som træbjælkelag. Indtil 1890 spænder bjælkerne fra facade til facade. Efter 1890, hvor hovedskillevæggene blev grundmuret, kan de også spænde fra facade til hovedskillevæg. Bjælkerne har et tværsnit på 6 × 6'' til 10 × 10'' (eller med vore dages mål: 150 × 150 mm til 250 × 250 mm). Som brandisolering er indskudt 1'' brædder (25 mm) med et faststampet lerlag. Lerlaget, som skulle være mindst 2'' tykt (50 mm), fungerer også som lyddæmpning. Lofter blev pudset på et underlag af spredt forskalling og kyllingevæv. Gulve blev udført af 5/4'' (31 mm) høvlede og pløjede fyrrebrædder udlagt direkte på bjælker.
Figur 52. z Kilde: SBI-rapport 142 (Engelmark, 1983).
Træbjælkerne hviler af på udsparinger i murværket. I tagbjælkelaget kan det forekomme, at bjælkeenden kun er beskyttet af ½ sten mod normalt 1 sten, hvilket gør bjælkeenderne mere udsatte for nedbrydning.
Fra begyndelsen af 1950'erne blev helstøbte betondæk med en tykkelse på 100-120 mm normale. Senere kom også 150 mm massivdæk eller huldæk med større tykkelse til (185 mm huldæk modsvarer 150 mm massivdæk). 150 mm massivdæk eller 185 mm huldæk opfylder normalt de krav til luftlydisolation af etageadskillelser, der var gældende indtil 1. februar 2008. Sådanne konstruktioner skal renoveres for at leve op til de nugældende krav. Se også afsnit 2.7, Lydisolering.
Figur 53. Etageadskillelse bestående af et 150 mm betondæk med trægulv. Kilde: SBI-anvisning 172, Bygningers lydisolering: Nyere bygninger (Kristensen, 1992a).
2.5.2 Fugtmæssige og konstruktive forhold
Ved etablering af tagboliger skal man sikre, at etageadskillelsen konstruktivt og fugtteknisk fungerer som den skal. Uanset om etageadskillelsen har fungeret som adskillelse mellem en beboet og en ubeboet etage eller som underlag for et tag, kan der fx være optræk til råd- og svampeskader. Dette skal afhjælpes i forbindelse med etablering af tagboliger.
I flade tage med træskelet som bærende konstruktion opstår råd- og svampeskader i etageadskillelsen oftest pga. en utæt tagdækning, men kan også skyldes indbygget fugt, fordi træet ikke har været tilstrækkelig tørt. Ved rejste tage vil etageadskillelsen primært være udsat i sammenføjningen med tagkonstruktionen. Her kan fugtskader affødt af en utæt tagdækning pga. manglende eller beskadigede tagsten eller lignende brede sig fra spærkonstruktionen til etageadskillelsen.
Ved tilstandsvurdering af træbjælkelag skal man bl.a. tage stilling til, om bjælkerne er underdimensionerede, om der er uønsket store sætninger, og om bjælkehovederne har fugtskader. Undersøgelser af bjælker fra et konkret byggeri viste, at ældre træbjælker styrkemæssigt godt kan være fuldt på højde med nye bjælker på trods af udtørringsrevner m.m. Se mere i Den ældre boligmasses bygningsmæssige kvalitet (Carlsen & Engelmark, 1981). En tilstandsvurdering af etageadskillelser omfatter samtidig en vurdering af konstruktionens brand- og lydisoleringsevne. Se også SBi-anvisning 225, Etablering af tagboliger, 7.3 Tekniske forundersøgelser (Hansen & Andersen, 2009).
2.5.3 Sammenføjning med andre bygningsdele
Sammenføjningen mellem etageadskillelse og tagkonstruktion (spær) skal vurderes i forhold til, om det er nødvendigt at ændre på tagkonstruktionen for at kunne lægge nyt tag eller for at opnå en tilstrækkelig etagehøjde i de nye tagboliger.
Der kan også være et ønske om, at tagboligernes rumfordeling helt eller delvis adskiller sig fra de underliggende etager, eller at tagboligerne leveres som færdige moduler. I begge tilfælde vil der være behov for at afklare, hvordan koblingen mellem den eksisterende og den nye konstruktion udføres. I flere tilfælde ses løsninger, hvor den eksisterende etageadskillelse bibeholdes. Oven på den eksisterende etageadskillelse anbringes en separat gulvkonstruktion. Mellemrummet mellem etageadskillelsen og den ny gulvkonstruktion kan benyttes til fremføring af installationer, ligesom det muliggør en anden placering af skillevægge end i de eksisterende etager.
Særlig i de tilfælde, hvor etageadskillelsen har fungeret som under-lag for tagdækningen, typisk af tagpap, er det muligt at etablere et vandret gulv i tagboligen, selvom der er en vis hældning på det gamle tag. Derved undgår man helt at fjerne den gamle tagdækning. Det er en stor fordel, hvis der ikke er bygningstekniske eller bygningsfysiske argumenter for at fjerne taget. Et eksisterende tagpaptag vil da fungere som en dampspærre mellem to etager. Det vil normalt ikke være noget problem, når begge etager er beboede og opvarmede. Eksempelsamlingen på www.sbi.dk/tagboliger og litteraturlisten rummer byggerier, hvor denne løsning er benyttet. Figur 54 skitserer, hvordan det er løst i et konkret byggeri.
Figur 54. Ny selvstændig gulvkonstruktion bygget oven på eksisterende etageadskillelse fra 1970'erne. Den eksisterende ejendom havde fladt tag. Se også eksempel 17 i eksempelsamlingen på www.sbi.dk/tagboliger. Kilde: Mangor og Nagel (udsnit af tegning).
2.5.4 Gennemføringer i etageadskillelsen
For at sikre adgang til tagboligerne via en eksisterende trappeopgang vil der ofte være behov for at gennembryde etageadskillelsen. I ældre etageejendomme med træbjælkelag kan det være nødvendigt at save en eller flere bjælker over, især hvis adgangen til loftetagen etableres ved at forlænge hovedtrappen og murene omkring den. I så fald er det nødvendigt at indbygge forstærkninger rundt langs trappeåbningen for at sikre, at de vandrette kræfter fra tagets spærkonstruktion kan overføres. Muren rundt om trappeskakten vil optage de lodrette kræfter.
Hvis adgang til loftetagen etableres via en ny, selvstændig trappe, fx hvis de eksisterende lejligheder udvides opad, har man større mulighed for at placere trappen optimalt i forhold til det eksisterende bjælkelag. Ved oversavning af bjælker skal man være opmærksom på, at der ikke er nogen mur under trappen, som kan overføre de lodrette kræfter. Man skal derfor både håndtere de lodrette kræfter som sådan og de vandrette kræfter fra tagets spærkonstruktion.
TRÆ 52 (Munch-Andersen & Lund Johansen, 2005) anviser løsninger på bjælkeudveksling i forbindelse med trapper. I ejendomme med betonelementer som etageadskillelser kan man vælge at udskifte elementet over den eksisterende trappe med et element med en trappeåbning for at kunne forlænge denne. Alternativt skal man sikre, at der kan skæres en åbning i den eksisterende etageadskillelse (underlag for oprindeligt tag), uden at denne svækkes statisk.
Lodret føring af installationer bør så vidt muligt foregå i særlige installationsskakte for at lette udskiftning og reparation. Er det nødvendigt at placere gennemføringer i selve etageadskillelsen skal de udføres, så de ikke svækker etageadskillelsen, hvad angår lydisolering og – hvis etageadskillelsen er en brandadskillende bygningsdel – brandsikring, jf. BR08, kap. 5.5.2, stk. 4 (Erhvervs- og Byggestyrelsen, 2009) og Brandteknisk vejledning 31 (Dansk Brand- og sikringsteknisk Institut, 2005). Det betyder, at udsparinger i etageadskillelser skal være så små som muligt, og at gab mellem etageadskillelse og gennemføringer skal lukkes tæt. Man skal være opmærksom på, at gennemføringer i sig selv kan lede både brand og lyd, ikke mindst gennemføringer af ventilationskanaler.
Rørgennemføringer i vådrum skal desuden være vandtætte, og rørgennemføringer i etageadskillelsen i den vandbelastede del af vådrummet er ikke tilladt.
Se også afsnit 3.1, Boligens indretning, og afsnit 4.6, Vand og afløb. Ligeledes skal man sikre, at gennemgang af fugt, gas, røg og lugt hindres i flg. BR08, kap. 8.1, stk. 2 (Erhvervs- og Byggestyrelsen, 2009).
2.5.5 Tagterrasser og altaner
Etableres en tagterrasse – eller altan – på (dele af) den etageadskillelse, der hidtil har fungeret som adskillelse mellem en beboet etage og et ubeboet loftrum, er det vigtigt at tage hensyn til, at tagterrassen på en og samme tid fungerer som en del af klimaskærmen og udsættes for en belastning fra brugerne. Det betyder bl.a., at den del af etageadskillelsen, der fungerer som underlag for en tagterrasse, skal varmeisoleres samt skal opfylde ydeevnekravene til klimaskærmen.
Det er kompliceret at udføre tagterrasser korrekt for at undgå vandindtrængning. Det er derfor meget vigtigt, at de projekteres, planlægges og udføres med stor omtanke, se BYG-ERFA blad (23) 07 12 29 (Bunch-Nielsen et al., 2007) og (27) 08 04 30 (Bunch-Nielsen et al., 2008) for nærmere beskrivelse. Erfaringsmæssigt er der ofte projekteret med for lille inddækningshøjde, hvor belægningen på tagterrassen møder det tilstødende dør- eller facadeparti ved en niveaufri adgang. Figur 54 viser, hvordan det er løst i et konkret byggeri. Et andet problem er utilfredsstillende afvanding af terrasseoverfladen som følge af en forkert udført opbygning af tagterrassen.
Normalt vil man placere varmeisoleringen på oversiden af den bærende konstruktion for at undgå, at etagehøjden i de underliggende lejligheder bliver uønsket lav i de dele, der befinder sig under tagterrassen. Det betyder omvendt, at det er nødvendigt med særlige
Figur 55. Eksempler på opbygning af tagterrasser. Kilde: SBi-anvisning 224, Fugt i bygninger (Brandt et al., 2009).
1. Omvendt tag til tagterrasse eller grønt tag udlagt på betondæk. Membranen ligger under isoleringen og fungerer også som dampspærre. Mellem isolering og belægning er udlagt fiberdug for at beskytte isoleringen.
2. Duo-tag til tagterrasse eller grønt tag. Membranen ligger mellem de to lag isolering og fungerer også som dampspærre. Tykkelsen af det øverste isoleringslag skal dimensioneres iht. SBi anvisning 224, Fugt i bygninger, 12.5.3 Ændring af kolde tage til varme tage. (Brandt et al, 2009). Mellem isolering og belægning er udlagt geotekstil for at beskytte isoleringen.
3. Tagterrasse udformet som retvendt tag med fliser på fødder eller opklodsninger, så afvanding sikres. Faldet skal være mindst 1:40.
foranstaltninger for at sikre en niveaufri adgang fra bolig til tagterrasse. Samtidig skal der tages hensyn til belastningerne på taget og de særlige påvirkninger, der overføres fra belægningen til tagdækningen. Det er derfor mest hensigtsmæssigt at udforme disse belastede tage som omvendte tage eller duo-tage.
Fugtteknisk fungerer omvendte tage og duo-tage som varme tage, idet de bærende dele af tagkonstruktionen ligger på den varme side af isoleringen.
I det omvendte tag er der kun én membran, idet tagdækningen i princippet også er dampspærre. I duo-taget skal isoleringen på oversiden af dampspærren normalt udgøre mindst halvdelen af isoleringen for at sikre, at membranen holdes frostfri. Herved kan faldet på taget reduceres til 1:100.
Ved at udforme tagkonstruktionen som et duo-tag eller et omvendt tag kan membranen holdes frostfri. Herved hindres, at belægningen fryser fast til membranen og beskadiger den ved dimensionsændringer.
I omvendte tage eller duo-tage skal det øverste isoleringslag – som ligger over membranen – bestå af et materiale med lukkede celler, som kun optager små vandmængder og derfor ikke beskadiges af frostpåvirkninger, fx XPS-isolering (ekstruderet polystyren).
I duo-tage kan der anvendes andre isoleringsmaterialer under membranen, hvor de ikke udsættes for vandpåvirkninger, fx EPS-isolering (ekspanderet polystyren) eller celleglas.
Isoleringen har – ud over den varme- og fugttekniske funktion – til formål at beskytte tagmembranen mod mekaniske påvirkninger.
Tagterrasser kan også udformes som almindelige retvendte, varme tage, forudsat at belægningen placeres på opklodsninger, så vandet frit kan løbe under belægningen. Tagmembranen skal i givet fald have et fald på mindst 1:40.
For yderligere anvisninger henvises til ovennævnte BYG-ERFA blade, samt SBi-anvisning 224, Fugt i bygninger (Brandt et al., 2009).
2.6 Brandsikring
Tagboliger skal opfylde de krav og anvisninger, som gælder for anvendelseskategori 4 (etageboliger m.m.) i bygningsreglementets kap. 5 (Erhvervs- og Byggestyrelsen, 2009). Kapitlet beskriver, hvilket brandsikkerhedsniveau der skal overholdes.
Eksempler på specifikke krav til udførelse og indretning af bygningsafsnit er beskrevet i:
SBi-anvisning 216, Anvisning om Bygningsreglement 2008 (Stang, 2009)
Eksempelsamling om brandsikring af byggeri (Erhvervs- og Byggestyrelsen, 2006)
Brandsikring af byggeri (Dansk Brand- og sikringsteknisk Institut, 2008).
Når ordet 'krav' benyttes efterfølgende, er det med reference til ovenstående publikationer samt vejledninger fra Dansk Brand- og sikringsteknisk Institut, jf. litteraturlisten.
Brandsikring i forbindelse med etablering af tagboliger er kompliceret. Der er typisk tale om ældre beboelsesbygninger, som ikke lever op til kravene til brandsikring af nybyggeri. Byggesagsmyndighederne skal derfor altid inddrages for at tage stilling til, hvilke brandsikringsmæssige tiltag, der er nødvendige for at etablere tagboliger. Her ses helt bort fra, hvad en besigtigelse af ejendommen kan afsløre af fejl og mangler i form af opbevaring af brændbart materiale på bagtrappen, manglende retablering af brandvæg efter etablering af undertag, m.m.
Ved etablering af tagboliger er der krav til:
Indretning, se afsnit 2.6.1
Flugtveje og redningsforhold, se afsnit 2.6.2
Konstruktive forhold (krav til bygningsdeles brandmodstandsevne) – generelt, se afsnit 2.6.3
Konstruktive forhold – eksisterende bygningsdele og trapper, se afsnit 2.6.4
Konstruktive forhold – bygningsdele i bygningens øverste etage, se afsnit 2.6.5
Brandtekniske installationer, se afsnit 2.6.6
Brand- og røgspredning (krav til overfladers brandmodstandsevne samt opdeling i brandmæssige enheder), se afsnit 2.6.7
Redningsberedskabets indsatsmulighed, se afsnit 2.6.8.
Tabel 8 i afsnit 2.6.9 viser forholdet mellem de europæiske brandklasser, der blev indført i den danske byggelovgivning via et tillæg til bygningsreglementet i 2002, og de daværende danske betegnelser. De danske betegnelser anvendes stadig hyppigt, ligesom en række godkendelser af produkter er baseret på disse. Det betyder blandt andet, at de brandtekniske egenskaber af en eksisterende konstruktion kun kan bedømmes efter de daværende danske betegnelser. I øvrigt henvises til BR08, kap. 5 (Erhvervs- og Byggestyrelsen, 2009). Det skal bemærkes, at en byggevare, der er klassificeret efter det danske system, ikke nødvendigvis kan opnå den tilsvarende europæiske klassifikation. Det kræver en ny prøvning.
Krav til tagboliger
Som udgangspunkt skal nye tagboliger leve op til de specifikke krav til bygningers brandsikring beskrevet i Eksempelsamling om brandsikring af byggeri (Erhvervs- og Byggestyrelsen, 2006). Rundt omkring i kommunerne er det dog normal anvendt praksis at godkende andre, mere bygbare løsninger. Det vil være forskelligt fra kommune til kommune, hvad der er normal anvendt praksis. Det vil altid komme an på en vurdering i den konkrete byggesag, om en godkendelse kan opnås.
Krav til den eksisterende bygning
Ældre beboelsesbygninger skal leve op til brandkravene i Bekendtgørelse nr. 81, 1976 (bygninger opført før år 1900), og i Bekendtgørelse nr. 184, 1983 (bygninger opført efter år 1900). Kravene blev indført for at sikre, at ældre beboelsesbygninger i et vist omfang blev ført up to date hvad angår brandsikring. Man skulle som bygningsejer, da de pågældende bekendtgørelser trådte i kraft, forholde sig til, hvordan ens ejendom kunne opgraderes rent brandmæssigt.
Etablering af tagboliger i en ældre beboelsesbygning vil normalt ikke udløse krav om, at den eksisterende bygning skal renoveres, så den lever op til de nuværende brandkrav udmøntet i Eksempelsamling om brandsikring af byggeri (Erhvervs- og Byggestyrelsen, 2006). En overholdelse af de pågældende krav vil i de fleste tilfælde gøre tagboligprojektet urealistisk dyrt. En række alternative løsningsmodeller er beskrevet nedenfor, se fx afsnit 2.6.4. Særlige forhold gør sig gældende for trapper, især hvis man i forbindelse med etablering af tagboliger nedlægger bagtrappen.
2.6.1 Indretning
En tagbolig skal udgøre mindst én selvstændig brandcelle, jf. BR08, kap. 5.1 (Erhvervs- og Byggestyrelsen, 2009).
En brandcelle
er et eller flere rum, hvorfra branden ikke spredes til andre brandceller i den tid, der kræves for evakuering og redningsmandskabets redning af personer.
udgør en selvstændig brandmæssig enhed.
skal være adskilt fra omkringliggende brandceller med bygningsdele mindst som bygningsdel klasse REI 60 eller EI 60 [(ikke) bærende og adskillende bygningsdel BD-60].
må maksimalt være i 2 etager.
Boliger kan normalt indrettes, så der kun er adgang til én flugtvejstrappe, jf. kap. 2.2 i Eksempelsamling om brandsikring af byggeri (Erhvervs- og Byggestyrelsen, 2006).
En tagbolig med et større areal end 150 m2 bør opdeles i flere brandceller. Rum med flere etager bør have redningsåbninger på alle etager, jf. kap. 2.7.1 i Eksempelsamling om brandsikring af byggeri.
I visse tilfælde kan det samlede areal af tagboliger i en ejendom udgøre mere end 600 m2. I så fald er det nødvendigt med en opdeling i brandsektioner, hvis der ikke etableres sprinkleranlæg, se SBi-anvisning 216, Anvisning om Bygningsreglement 2008, 5.5.2 Brand- og røgspredning i den bygning, hvor branden opstår eller til bygninger på samme grund (Stang, 2009), tabel 5.5.2.2a. Hvis tagboligerne etableres i ejendomme med indadgående hjørner bør opdelingen i brandsektioner placeres mindst 2,5 m fra et indadgående hjørne for at undgå vinkelsmitte, jf. SBi-anvisning 216, figur 5.5.2.2b. Det kan fx være aktuelt i karréejendomme.
Gange i flugtveje udformes normalt som selvstændige brandceller, mens trapper udformes som selvstændige brandsektioner, jf. BR08, kap. 5.5.2, stk. 3. (Erhvervs- og Byggestyrelsen, 2009). Hvor gulvet i øverste etage er mere end 9,6 meter over terræn, og hver boligenhed ikke er udstyret med en åben altan, skal adgang fra hovedtrappen til kælderen enten gå via det fri eller via en luftsluse, se Eksempelsamling om brandsikring af byggeri (Erhvervs- og Byggestyrelsen, 2006), kap. 2.8.
2.6.2 Flugtveje og redningsforhold
Disse forhold er beskrevet i afsnit 3.5, Flugtveje og redningsforhold.
2.6.3 Konstruktive forhold – generelt
Bestemmelse af bærende og afstivende konstruktioners bæreevne under brand skal ske i henhold til DS/EN 1990, Projekteringsgrundlag for bærende konstruktioner (Dansk Standard, 2007b), DS/EN 1991-1-2, Brandlast (Dansk Standard, 2007c) samt brandafsnit i øvrige relevante konstruktionsnormer. Ved sammenbygning af eksisterende bygningsdele med nye skal det sikres, at den samlede konstruktion i brandmæssig henseende ikke er ringere end kravene til de enkelte bygningsdele i konstruktionen.
Særlige regler gælder, hvis der ved etableringen af tagboliger bliver mere end 22 m fra terræn til gulvet i øverste udnyttede etage, jf. BR08, kap. 5.3, stk. 4 (Erhvervs- og Byggestyrelsen, 2009).
Frilagte stolper i bindingsværk
Det er under visse betingelser muligt at frilægge stolper i bindingsværksvægge. Hvis det drejer sig om en bærende bindingsværksvæg, bør stolperne ikke frilægges, medmindre de ubeskyttede kan opfylde kravene til klasse REI 60 [bærende og adskillende bygningsdel BD-60], se afsnit 2.1.2, Murede bygninger, under overskriften Bindingsværk – frilægning af stolper.
Isoleringsmaterialer
For bygninger, hvor højden til gulv i øverste etage er mere end 5,1 m over terræn, med bærende konstruktioner der delvis består af træ, bør anvendes isoleringsmateriale mindst af materiale klasse B-s1,d0 [klasse A materiale], se Eksempelsamling om brandsikring af byggeri (Erhvervs- og Byggestyrelsen, 2006), kap. 3.2.
I bygninger med bærende konstruktioner af materiale klasse A1 eller A2-s1,d0 [ubrændbart materiale], fx beton, kan alle typer af isoleringsmaterialer som udgangspunkt anvendes i tagkonstruktionen. Isoleringsmaterialer, der ikke opfylder kravene til materiale klasse
D-s2,d2 [klasse B materiale], kræver dog, at den underliggende konstruktion mindst opfylder kravene til materiale klasse (R)EI 30 [(Ikke) bærende, adskillende bygningsdel BD-30].
Se også afsnit 3.2 i Eksempelsamling om brandsikring af byggeri (Erhvervs- og Byggestyrelsen, 2006) samt By og Byg Anvisning 207, Anvendelse af alternative isoleringsmaterialer (Pedersen et al., 2003).
2.6.4 Konstruktive forhold – eksisterende bygningsdele og trapper
Krav til eksisterende bærende bygningsdeles brandmodstand
Det er et krav, at bærende konstruktioner udføres i henhold til Eksempelsamling om brandsikring af byggeri (Erhvervs- og Byggestyrelsen, 2006), eller at det dokumenteres, at de kan overleve et relevant brandforløb, se fx Information om brandteknisk dimensionering (Erhvervs- og Boligstyrelsen, 2004b). Etablering af tagboliger vil oftest øge højden fra terræn til gulvet i bygningens øverste udnyttede etage. Herved kan kravene til de eksisterende bærende og afstivende konstruktioners brandmodstandsevne principielt blive skærpet. De specifikke krav fremgår af tabel 5, baseret på tabel 3.1 i Eksempelsamling om brandsikring af byggeri (Erhvervs- og Byggestyrelsen, 2006).
Krav til trapper er beskrevet særskilt i afsnittet Trapper på side 82.
For altaner og altangange henvises til tabel 3.2 i Eksempelsamling om brandsikring af byggeri. Her er kravene ikke afhængige af bygningens højde. Københavns Kommune har beskrevet sine retningslinjer vedr. opsætning og renovering af altaner på eksisterende bygninger på:
Tabel 5. Krav til eksisterende bærende konstruktioners brandmodstandsevne.
*) eller klasse R60 D-s2,d2 udført med beklædning klasse K2 60 A2-s1,d0.
**) Det betyder, at nøgleelementer og deres fastholdelse i knudepunktsfiguren får en brandmodstandsevne på mindst 120 minutter. Nøgleelementer er bygningsdele, der har betydning for bygningens overordnede stabilitet. Se også kap. 3.3 i Eksempelsamling om brandsikring af byggeri (Erhvervs- og Byggestyrelsen, 2006).
***) Se også tabel 8.
Grænsen på 12 m overskrides fx ved en ejendom med 4 etager samt loftrum, hvor stueetagen er hævet i forhold til gadeniveau, og hvor man ønsker at indrette loftet til tagboliger.
Kravene i tabel 5 kan kun vanskeligt imødekommes med de materialer, som er anvendt i det traditionelle byggeri. For brandsikring af bygninger med bærende konstruktioner af træ anviser Brandteknisk vejledning 33, Træbygninger (Dansk Brandteknisk Institut, 1999) løsninger for bygninger med op til 4 etager. Enten forsyner man bygningen med automatisk sprinkleranlæg, eller man beskytter de bærende konstruktioner af træ med et ubrændbart eller næsten ubrændbart brandbeskyttelsessystem. Herved opnås den samme brandsikkerhed.
Eksisterende etageadskillelser af træ kan anses at opfylde kravene til klasse REI 60 [bærende og adskillende bygningsdel BD-60], jf. Brandtekniske eksempler (Dansk Brandteknisk Institut, 2000), svarende til kravene til en etageadskillelse op til 5,1 m over terræn, jf. tabel 5.
Det er normalt anvendt praksis at acceptere de eksisterende etageadskillelser som underlag for en tagbolig, såfremt:
Etageadskillelsen har vederlag på en eksisterende bygningsdel, der mindst opfylder kravene til klasse R(EI) 60 A2-s1,d0 [bærende bygningsdel BS-60], fx en bærende ydervæg af teglsten, jf. Brandtekniske eksempler (Dansk Brandteknisk Institut, 2000),
eller
etageadskillelsen har vederlag på en eksisterende bygningsdel, der mindst opfylder kravene til klasse R 60 D-s2,d2 [bærende, ikke-adskillende bygningsdel af mindst klasse B materiale], der er udført med en beklædning klasse K2 60 A2-s1,d0 [60 minutters brandbeskyttelsessystem],
eller
etageadskillelsen har vederlag på en eksisterende bygningsdel, hvis brandmodstandsevne er forbedret, således at den mindst svarer til en bygningsdel klasse R 90 [bærende, ikke-adskillende bygningsdel BD-90]. Denne løsning kan eksempelvis anvendes, hvor etageadskillelsen har vederlag på en del af tagkonstruktionen, som det er tilfældet i en mansardtagskonstruktion.
Etageadskillelsen er intakt og udført svarende til traditionelle træbjælkelag, normalt opbygget, som vist på figur 52:
1 ¼” (32 mm) høvlede og pløjede gulvbrædder.
Indskudsmateriale: Ler eller sand.
Bjælker med indskudsbrædder i not.
Forskalling.
Rørvæv og puds (skal være intakt).
Figur 56 skitserer de beskrevne eksempler på normalt anvendt praksis.
Figur 56. Etageadskillelse mod tagbolig. Eksempler på normalt anvendt praksis.
Normalt skal bærende konstruktioner brandbeskyttes på alle sider, eksempelvis skal en firkantet søjle brandbeskyttes på alle 4 sider. Hvor eksisterende dele af et spær brandbeskyttes, er det normalt anvendt praksis at godkende, at spæret ikke brandbeskyttes på den del, som vender mod tagfladen.
Brandadskillende bygningsdele skal lukkes tæt ved samlinger og gennemføringer, så adskillelsernes brandmæssige egenskaber ikke forringes if. BR08, kap 5.5.2, stk. 4 (Erhvervs- og Byggestyrelsen, 2009). Samlingernes brandmodstandsevne bestemmes iht. beregningsmetoderne angivet i konstruktionsnormerne eller ved prøvning. Se også SBi-anvisning 216, Anvisning om Bygningsreglement 2008, 5.3 Konstruktive forhold (Stang, 2009).
Trapper
Der er behov for at sikre sig, at trappens bærende konstruktion overholder krav til brandmodstandsevnen. I de fleste tilfælde vil der være mere end 9,6 m til gulv i øverste etage efter ombygning. Så har det tidligere som udgangspunkt været nødvendigt at udskifte hovedtrappen, hvis den er af træ, idet konstruktionen skal overholde kravene til klasse R 30 A2-s1,d0 [bærende, ikke-adskillende bygningsdel BS-30], jf. tabel 3.3 i Eksempelsamling om brandsikring af byggeri (Erhvervs- og Byggestyrelsen, 2006).
I 2006 blev kravene lempet, idet man i bygninger med op til 22 m til gulv i øverste etage kan benytte sig af trapperumssprinkling som alternativ løsning, jf. Ny forskrift udvider mulighederne for trapperumssprinkling i ældre beboelsesejendomme (Kristensen, 2007) og Brandsikring af trætrapper ved brug af sprinkling (Socialministeriet, 2007). Trapperumssprinkling skal udføres i overensstemmelse med Trapperumssprinkling (Dansk Brand- og sikringsteknisk Institut, 2007b), suppleret med beklædning på hovedtrappens underside af klasse K1 10 B-s1,d0 [klasse 1 beklædning].
Betragtes bygningen i stedet som en træbygning, brandsikret i henhold til Brandteknisk vejledning 33, Træbygninger (Dansk Brandteknisk Institut, 1999), er det som alternativ til trapperumssprinkling muligt at brandsikre hovedtrappen med beklædning klasse K2 30 A2-s1,d0 [30 minutters brandbeskyttelsessystem]. Det er dog kun muligt, hvis der efter ombygning er mindre end 9,6 m til gulv i øverste etage. Er trappen i forvejen beklædt med rør og puds på forskalling, svarer beklædningskravet til 2 × 13 mm gips langs trappens underside og lodrette sider. Hvis trappen er uden underbeklædning, skal benyttes 2 × 15 mm brandgipsplade på forskalling eller en lignende løsning, jf. Retningslinjer for nedlægning af bagtrapper (Bygningsinspektoratet, 2009b).
Begge løsninger er betydeligt billigere end at udskifte hovedtrappen. Trapperumssprinkling er at foretrække, hvis man ønsker at bevare en smuk, gammel hovedtrappe, som anvist i Brandsikring af trætrapper ved brug af sprinkling (Socialministeriet, 2007), og er det eneste alternativ, når der er mere end 9,6 m til gulv i øverste etage. Ved bygninger med mere end 22 m til gulv i øverste etage stilles der særlige krav til trappen, jf. afsnit 2.6.8, Redningsberedskabets indsatsmulighed.
Ved etablering af trapperumssprinkling skal man være opmærksom på, at der normalt stilles krav til de adskillende bygningsdele, eksempelvis at hoveddøre skal være mindst af klasse EI2 30 [BD-dør 30 M]. Uanset hvilken løsning der vælges, skal den godkendes af de lokale byggesagsmyndigheder.
Se også afsnit 3.3, Adgangsforhold, vedr. krav til hovedtrapper ved nedlæggelse af bagtrapper.
2.6.5 Konstruktive forhold – bygningsdele i bygningens øverste etage
Bygningsdele i bygningens øverste etage – generelt
Krav til brandmodstandsevne af bærende og afstivende lodrette og vandrette bygningsdele i den øverste etage (tagboligetagen) vil afhænge af bygningens højde. Kravene til etageadskillelsen mellem tagboligen og den underliggende etage svarer til kravene til bærende og afstivende bygningsdele i den eksisterende bygning, som beskrevet ovenfor. Lodrette bygningsdele samt en eventuel etageadskillelse mellem tagboligen og et loftrum (spidsloft) skal være udført mindst som klasse R 30 [bærende, ikke-adskillende bygningsdel BD-30], hvis der er mindre end 12 m til gulvet i øverste etage, og mindst som klasse R 60 [bærende, ikke-adskillende bygningsdel BD-60], hvis der er mellem 12 og 22 m, jf. kap. 3.3 i Eksempelsamling om brandsikring af byggeri (Erhvervs- og Byggestyrelsen, 2006).

Figur 57. Tagkonstruktion og bærende bygningsdele i øverste etage. Eksempel på normalt anvendt praksis. *: R 30 når der ikke sker væsentlige ændringer i tagkonstruktionen, uanset om der er mere end 12 m til gulv i øverste etage. Ellers R 60.
Det er normalt anvendt praksis at tillade tagkonstruktioner og bærende bygningsdele i øverste etage, der opfylder kravet til klasse R 30 [bærende, ikke-adskillende bygningsdel BD-30], som skitseret i figur 57, uanset om øverste etageadskillelse er mere end 12 m over terræn. Det forudsætter, at der ikke sker væsentlige ændringer i tagkonstruktionen, og at denne ikke indgår i et bærende system, der eksempelvis bærer et spidsloft, der indrettes til bolig. Det er normalt anvendt praksis i Københavns Kommune fx at acceptere en forhøjelse af taget med op til 60 cm og/eller tilføjelse af en lille tagaltan eller kvist, mens større indgreb, der fx involverer udveksling af spær som beskrevet i afsnit 2.2, udløser krav om klasse R 60.
For sammenbyggede bygningsdele i øverste etage gælder, at den samlede konstruktion i brandmæssig henseende ikke må blive ringere, end hvad der kræves for den enkelte bygningsdel i konstruktionen.
Bygningsdele i øverste etage – mansardtag
For bygninger med mansardtag kan brandmæssige hensyn være styrende for, om spidsloftet kan indrettes til selvstændige opholdsrum. Der vil i givet fald være tale om bærende og afstivende etagedæk mellem spidsloft og underliggende etage, der hviler på brandbare konstruktioner. Det er normalt anvendt praksis at acceptere, at etagedækket hviler af på ståldragere, der løber på langs ad bygningen, og som har vederlag på fx murede vægge, typisk trappevægge eller lejlighedsskel, som skitseret på figur 58. Ståldragerne skal mindst opfylde kravene til klasse R 60 A2-s1,d0 [bærende, ikke-adskillende bygningsdel BS-60]. Alternativt accepteres, at etagedækket understøttes med en stolpekonstruktion, der mindst opfylder kravene til klasse R 90 [bærende, ikke-adskillende bygningsdel BD-90]. I første omgang skal man dog kontakte en brandtekniker/ingeniør.
Figur 58. Mansardtag med udnyttet spidsloft. Eksempel på normalt anvendt praksis.
*) ståldrager med vederlag på trappevægge eller lejlighedsskel
**) stolper, alternativ til ståldragere
***) samt de dele af tagkonstruktionen, der indgår i det bærende system
****) dog ingen krav, hvis spidsloftet indrettes som hems
*****) REI 90 kræves, hvis etageadskillelsen skal bære R 90 stolper, og der ikke er en R 90 bærende væg under stolperne. Ellers REI 60.
Man skal sikre sig, at den konstruktion, som ståldrageren eller stolperne hviler af på, har mindst samme brandmodstandsevne som ståldrageren/stolpen. Vælges løsningen med stolper, er deres placering bl.a. afhængig af, om den underliggende etageadskillelse opfylder kravene til klasse REI 90 [bærende, adskillende bygningsdel BD-90], som skitseret på figur 58. I modsat fald er placeringen af stolper bundet af, at der under stolperne skal være en bærende væg, der opfylder disse krav. De steder, hvor det ikke er muligt at anbringe en stolpe, fx ud for et vindue, skal der benyttes dragere el.lign. med en tilsvarende brandmodstand.
Samtidig skal etagedækket mellem spidsloft og underliggende etage opfylde kravene til klasse REI 60 [bærende og adskillende bygningsdel BD-60], medmindre spidsloftet indrettes som en hems på højst 4,5 m2. En hems opfattes i den forbindelse som et møbel og udløser derfor ikke noget krav til etageadskillelsen.
Hvis spidsloftet i et mansardtag ikke udnyttes, er det normalt anvendt praksis at betragte spidsloftet som et uudnytteligt tagrum. I så fald skal etagedækket mellem spidsloftet og den underliggende etage mindst opfylde klasse EI 30 [ikke-bærende, men adskillende bygningsdel BD-30], som skitseret på figur 59. Etageadskillelsen mellem loftetage og underliggende etage (mansardbjælkelaget) skal overholde kravene til klasse REI 60 [bærende og adskillende bygningsdel BD-60].
Figur 59. Mansardtag uden udnyttelse af spidsloft. Eksempel på normalt anvendt praksis.
*) R 30 når der ikke sker væsentlige ændringer i tagkonstruktionen, uanset at der er mere end 12 m til gulv i øverste etage. Ellers R 60.
**) samt de dele af tagkonstruktionen, der indgår i det bærende system.
Uanset om spidsloftet under mansardtaget udnyttes, er det normalt anvendt praksis at forlange, at tagkonstruktionens 'stol' brandbeskyttes, så den opfylder kravene til klasse R 90 [bærende, ikke-adskillende bygningsdel BD-90], jf. figur 58 og figur 59. Det skyldes, at denne del af tagkonstruktionen indgår i det bærende system, når etagen over mansardbjælkelaget overgår til beboelse. Det samme gælder, hvis andre dele af tagkonstruktionen indgår i det bærende system.
2.6.6 Brandtekniske installationer
I bygninger placeret i anvendelseskategori 4, herunder etageboliger, skal der være røgalarmanlæg. Der bør være mindst én røgalarm pr. bolig, herunder nyetablerede tagboliger. Der bør maksimalt være 10 m mellem røgalarmerne.
Kravet om røgalarmanlæg er ikke nødvendigvis opfyldt for den eksisterende bygning, men det er på nuværende tidspunkt uafklaret, hvorvidt etableringen af tagboliger udløser et krav for den eksisterende bygning, jf. afsnittet Krav til den eksisterende bygning i introduktionen til afsnit 2.6.
2.6.7 Brand- og røgspredning
Afstandsforhold og krav til overfladers brandtekniske egenskaber
Tagboligers afstand til naboskel mv. er bundet af placeringen af den eksisterende bygning. Det kan få betydning i de tilfælde, hvor man ønsker at udforme tagboliger med fremspring og lign., idet der er øget risiko for brandspredning. Der kan så blive tale om skærpede krav til overfladers brandtekniske egenskaber eller krav om opførelse af en brandvæg. Ofte vil det være et spørgsmål om at forlænge den brandvæg, der i forvejen er ind mod nabobygningen. For at opfylde kravet til brandspredning bør der således udføres en brandvæg, hvis afstanden til naboskel er mindre end 2,5 m. Hvis yderbeklædningen er ringere end K1 10 B-s1,d0 [klasse 1 beklædning], er kravet dog 5 m. Se SBi-anvisning 216, Anvisning om Bygningsreglement 2008, 5.5.3 Brand-spredning til bygninger på anden grund (Stang, 2009).
Figur 60. Sikring mod brandsmitte over en brandvæg. Kilde: SBi-anvisning 216, Anvisning om Bygningsreglement 2008 (Stang, 2009)
Hvor der etableres kviste i nærheden af en brandkam, bør der if. Brandteknisk vejledning 33 (Dansk Brandteknisk Institut, 1999) sikres en afstand på min. 1,0 m fra kviste til brandkammen.
Ved vurdering af, hvilke overfladekrav der er gældende for den aktuelle bygningsdel, skal man være opmærksom på, at der stilles forskellige krav i forhold til, om der er tale om et tag, en ydervæg eller en flunke på en kvist. Fx lever zinkbeklædninger på underlag af forskalling som udgangspunkt ikke op til kravene for en beklædning klasse K1 10 D-s2,d2 [klasse 2 beklædning].
Bygningers modstandsevne over for brand- og røgspredning
Tabel 6 indeholder kravene til bygningsdeles modstandsevne over for brand- og røgspredning. De er gældende for såvel enkelte bygningsdele som for samlingerne mellem dem. Kravet til bygningsdele mellem brandsektioner gælder fx for bygningsdele, der omgiver et trapperum.
Tabel 6. Krav til bygningsdeles modstandsevne over for brand- og røgspredning.**
*) eller, hvis gulvet i øverste etage er mindre end 9,6 meter over terræn, klasse EI 60 D-s2,d2 udført med beklædning klasse K2 60 A2-s1, d0.
**) Se tabel 8 for tidligere danske betegnelser.
Ældre etageejendomme er normalt ikke opdelt i brandceller og brandsektioner som det kendes i dag, jf. Eksempelsamling om brandsikring af byggeri (Erhvervs- og Byggestyrelsen, 2006). De forskellige boligenheder er dog adskilt med bygningsdele, der if. Brandtekniske eksempler (Dansk Brandteknisk Institut, 2000) imødekommer kravet om, at vægge mellem brandsektioner eller brandceller lever op til klasse EI 60 D-s2,d2 [ikke-bærende, men adskillende bygningsdel BD-60 af mindst klasse B materiale] eller klasse EI 60 [ikke-bærende, men adskillende bygningsdel BD-60]. Inspiration kan også hentes i BYG-ERFA blad (22) 04 12 15 (Harpøth, 2004).
Et tagrum regnes for uudnytteligt, når der kræves væsentlige indgreb for at kunne indrette det til opholdsrum. I praksis vil et tagrum med W-spær (gitterspær) regnes som uudnytteligt og et tagrum med hanebåndsspær som udnytteligt, jf. BR08, kap. B.1.1.6 (Erhvervs- og Byggestyrelsen, 2009). Spidsloft og skunke kan være uudnyttelige tagrum. Et uudnytteligt tagrum kan indeholde installationer. Bemærk i den forbindelse, at DS 428, Norm for brandtekniske foranstaltninger ved ventilationsanlæg (Dansk Standard, 1986), der bl.a. indeholder krav til de rum, hvor der opstilles ventilationsanlæg, er under revision (sommer 2009).
Tagboliger udgør normalt en selvstændig brandcelle, hvilket betyder, at boligens lejlighedsskel mod andre tagboliger skal udføres mindst som en bygningsdel klasse EI 60 [ikke-bærende, men adskillende bygningsdel BD 60]. Hvor lejlighedsskellet samtidig er en brandsektionsvæg, skal det udføres mindst som en bygningsdel klasse EI 60 A2-s1,d0 [ikke-bærende, men adskillende bygningsdel BS 60]. Hvor væggen sammenbygges med taget, skal der etableres en brandkam eller en brandkamserstatning i henhold til Eksempelsamling om brandsikring af byggeri (Erhvervs- og Byggestyrelsen, 2006), kap. 5.2. Brandkammen eller brandkamserstatningen kan dog udelades, hvor brandsektionsvæggen adskiller en tagbolig fra en elevatorskakt eller fra et flugtvejstrapperum. Her skal brandsektionsvæggen kun føres op i tæt forbindelse med undersiden af tagdækningen.
Mod uudnytteligt tagrum kan den fornødne brandmodstandsevne opnås ved at udføre de adskillende væg- og loftkonstruktioner som bygningsdel klasse EI 30 [ikke-bærende, men adskilende bygningsdel BD 30].
Ved etablering af flere tagboliger med et samlet areal over 600 m2 skal man desuden være opmærksom på følgende krav til udførelsen:
For at reducere risikoen for brandspredning hen over brandsektionsvægge skal man etablere brandkamme eller brandkamserstatninger og evt. udføre sikring mod vandret brandspredning. Se nærmere i SBi-anvisning 216, Anvisning om Bygningsreglement 2008, 5.5.2 Brand- og røgspredning i den bygning, hvor branden opstår eller til bygninger på samme grund (Stang, 2009) og DBI Vejledning 36, afsnit 4.3 (Dansk Brand- og sikringsteknisk Institut, 2007a).
Hvor hulrum (fx ved ventilation af facader) passerer en brandmæssig adskillelse, skal man udføre brandstop. Brandstop kan fx udføres af isoleringsmateriale klasse A2-d1,s0 [ubrændbart], træ eller træbaserede plader. Undtaget er de tilfælde, hvor en ventileret ydervæg opfylder kravene beskrevet i afsnittet Krav til udvendige vægoverflader på næste side. Se nærmere i SBi-anvisning 216, Anvisning om Bygningsreglement 2008, 5.3 Konstruktive forhold (Stang, 2009), stk. 3.
Gennemføringer af installationer gennem brandadskillende bygningsdele skal udføres, så adskillelsernes brandmæssige egenskab ikke forringes. Se afsnit 4.8, Føringsveje, samt BR08, kap. 5.5.2 stk. 4 (Erhvervs- og Byggestyrelsen, 2009) og Brandteknisk vejledning 31 (Dansk Brand- og sikringsteknisk Institut, 2005).
Krav til indvendige overflader
Indvendige overflader må ikke kunne bidrage væsentligt til brand- og røgudvikling i tagboligen. Kravene til de indvendige overflader er angivet i tabel 7. Etablering af tagboliger kan medføre skærpede krav til indvendige overflader i eksisterende flugtveje, se også afsnittet Trapper i afsnit 2.6.4, Konstruktive forhold – eksisterende bygningsdele og trapper.
Tabel 7. Krav til indvendige overflader. Se tabel 8 for tidligere danske betegnelser.
*) dog klasse K1 10 D-s2,d2 for lofter i bygninger, hvor gulvet i øverste etage er mindre end 5,1 m over terræn.
Et nedhængt loft inkl. ophængningssystem bør ikke bidrage til brand- og røgspredningen i den tid, som personer, der opholder sig i rummet, skal bruge til at forlade rummet. Nedhængte lofter udført af materialer, som er af klasse B-s1,d0 [klasse A materiale], opfylder dette, som beskrevet i afsnit 5.1.2 i Eksempelsamling om brandsikring af byggeri (Erhvervs- og Byggestyrelsen, 2006).
Krav til udvendige vægoverflader
Udvendige vægoverflader bør udføres med beklædning klasse K1 10 B-s1,d0 [klasse 1 beklædning]. For ydervægge med en ventileret facadebeklædning (regnskærm) kan regnskærmen udføres i materiale klasse B-s1,d0 [klasse A materiale], hvis overfladen på ydervæggen bag regnskærmen opfylder ovennævnte krav, jf. Facadebeklædninger i SBi-anvisning 216, Anvisning om Bygningsreglement 2008, 5.5.2 Brand- og røgspredning i den bygning, hvor branden opstår eller til bygninger på samme grund (Stang, 2009). Hvis højden til gulv i øverste etage er mindre end 22 m over terræn, er der lempelser til ovenstående, jf. tabel 5.5.2.1 i samme kapitel.
Krav til tagdækning
Tagdækning bør udføres som mindst klasse BROOF(t2) [klasse T], dvs. tagdækning af ubrændbart materiale, eller med en konstruktionsopbygning som på anden måde er godkendt til tagdækning. Ubrændbar tagdækning er fx tagsten af tegl eller beton og metalplader på lægter af træ eller metal.
Krav til undertage
Der er normalt ingen krav til undertage, når disse er adskilt fra tagboligen med en indvendig beklædning, der lever op til gældende krav. Sikring mod brandspredning til undertaget via åbninger i ydervæggen kan udføres iht. DBI Vejledning 36, afsnit 4.2 (Dansk Brand- og sikrings-teknisk Institut, 2007a).
2.6.8 Redningsberedskabets indsatsmulighed
Redningsmandskabet skal kunne nå frem til redningsåbningerne for at kunne redde personer i de tilfælde, hvor flugtvejen er spærret. Der bør derfor ikke være trapper, lysskakte, bassiner eller lignende under redningsåbninger, som kan forhindre anvendelse af håndstiger.
Etablering af tagboliger kan medføre, at man overskrider grænsen på 10,8 m til undersiden af redningsåbninger på øverste etage. Det vil være tilfældet, hvis bygningen har 3 etager inden ombygning, og hvis nederste etage er i niveau med eller lidt over terræn. I så fald er det ikke længere muligt at benytte håndstiger til redning af personer. Der skal derfor etableres et befæstet brandredningsareal med en bredde på mindst 4 m placeret mellem 3 og 10 m fra facaden. Her skal redningsberedskabet kunne rejse kørbare stiger, jf. BR08, kap. 5.6.1 (Erhvervs- og Byggestyrelsen, 2009). Tilkørselsarealer hertil skal have en bredde på mindst 2,8 m. En bygning med mere end 4 etager kan – afhængig af opførelsestidspunktet – allerede inden ombygning have et befæstet areal til rådighed. I modsat fald vil en sådan bygning også skulle opfylde kravet om et befæstet areal.
Figur 61. Krav til brandredningsareal. Kilde: SBi-anvisning 216, Anvisning om Bygningsreglement 2008 (Stang, 2009).
Vender redningsåbningerne mod gaden, kan denne som regel fungere som befæstet areal. Hvis redningsåbningerne vender ind mod gården, skal der være plads nok til, at stiger kan komme ind og rundt i gården. Det kan blive nødvendigt at fjerne plankeværker, skure, træer og lign. i gården. Etablering af tagboliger kan også betyde, at der skal benyttes længere og dermed mere pladskrævende stiger. Gårdens adgangs- og pladsforhold kan derfor betinge, at tagboligernes redningsåbninger vender mod gaden.
Det kan anbefales at undersøge hos egen kommune, hvor meget plads der kræves for at få redningsmateriel frem og opstillet.
Hvis etablering af tagboliger medfører, at gulvet i øverste etage er mere end 22 m over terræn, kan redningsåbningerne ikke nås vha. stiger. Trapperne vil da være den eneste redningsmulighed for de personer, der befinder sig i tagboligen. Det betyder, at trappen skal udformes som en sikkerhedstrappe, jf. BR08, kap. 5.2, stk. 8 (Erhvervs- og Byggestyrelsen, 2009) og Eksempelsamling om brandsikring af byggeri (Erhvervs- og Byggestyrelsen, 2006), kap. 2.8. En sådan trappe kan efter behov suppleres med et sprinkleranlæg eller en brandmandselevator. Det medfører således store krav at etablere tagboliger i så høje bygninger. I praksis er det dog en yderst lille del af den eksisterende boligmasse. I disse tilfælde bør man derfor tage kontakt til kommunen på forhånd for at undersøge mulighederne.
I visse tilfælde kan det blive aktuelt at etablere stigrør i bygningen. Det er nødvendigt, hvis det ikke er muligt at fremføre brandslanger ad de primære indsatsveje. Dette vil være et problem i høje bygninger, hvor gulvet i øverste etage er mere end 22 m over terræn, ved trappeopgange med en lysningsbredde mindre end 0,2 m, eller hvis der ikke er oplukkelige vinduer i trappeopgangen, se BR08 kap. 5.6.1, stk. 3.
Røgudluftning vil normalt kunne foregå via tilgængelige, oplukkelige vinduer i trapperummet, der fungerer som primær indsatsvej.
2.6.9 Eksempler og brandklasser
Eksempler på ikke-bærende bygningsdele, branddøre, materialer, beklædninger, gulvbelægninger, tagdækninger og tagelementer fremgår af Brandteknisk Vejledning 30, Brandtekniske eksempler (Dansk Brandteknisk Institut, 2000). For så vidt angår bærende og afstivende konstruktioner henvises til DS/EN 1990, Projekteringsgrundlag for konstruktioner (Dansk Standard, 2007b), DS/EN 1991, Last på bærende konstruktioner (Dansk Standard, 2007c) og øvrige relevante konstruktionsnormer.
Vejledning om kviste (Bygningsinspektoratet, 2009a) er et eksempel på retningslinjer udarbejdet af en kommune, i dette tilfælde specifikt for kviste, som bl.a. forholder sig til de brandtekniske forhold.
De gældende brandkrav er formuleret efter de europæiske brandklasser indført i bygningsreglementet i 2002, mens fx eksemplerne i Brandteknisk Vejledning 30 (Dansk Brandteknisk Institut, 2000) er formuleret iht. de daværende danske betegnelser. I tabel 8 er vist sammenhængen mellem de to systemer for udvalgte krav.
Tabel 8. Sammenhæng mellem europæiske og danske betegnelser for brandklasser.
Med adskillende menes, at bygningsdelen fungerer som adskillelse mellem to brandceller. 'xx' betegner antal minutter, typisk 30, 60, 90 eller 120.
I øvrigt henvises til Brandteknisk Vejledning 35, Brandvægge og brandsektionsadskillelser, bilag 1 (Dansk Brand- og sikringsteknisk Institut, 2003). Det europæiske klassifikationssystem er nærmere beskrevet i kap. 3.1 i Eksempelsamling om brandsikring af byggeri (Erhvervs- og Byggestyrelsen, 2006).
2.7 Lydisolering
Ved etablering af tagboliger i ny tagetage eller i eksisterende loftrum vil etagedæk (eller tag) og eventuelle skillevægge blive berørt. De nye etageadskillelser baseres på de eksisterende etagedæk, mens skillevægge mellem de nye tagboliger enten kan være nye vægge eller baseres på eksisterende vægge.
I dette afsnit beskrives, hvilke overordnede forhold man skal være opmærksom på ved projektering af de nye konstruktioner, ligesom det indeholder eksempler på konstruktionsløsninger. Man skal i den forbindelse være opmærksom på, at lydkravene i bygningsreglementet er skærpet med indførelse af BR08 (Erhvervs- og Byggestyrelsen, 2009), og at der derfor generelt mangler erfaringer med nye konstruktionsløsninger.
Valg af nye konstruktioner og konstruktionsændringer afhænger i høj grad af bygningstypen. Det er hensigtsmæssigt at skelne mellem de tre hovedgrupper af bygningstyper nævnt i afsnit 2: Ældre muret byggeri, nyere muret byggeri og betonelementbyggeri.
Afsnit 4.3, Lydforhold beskriver de grundlæggende myndighedskrav samt forholdsregler mod støj fra naboer.
2.7.1 Lydisolationsbegreber og transmissionsveje
De største lydmæssige udfordringer ved etablering af tagboliger er opfyldelse af kravene til luftlydisolation og trinlydniveau. Ved projekteringen af nye tagboliger er det vigtigt at vide, at lyd ikke kun transmitteres gennem direkte adskillende bygningsdele. Andre transmissionsveje, fx utætheder eller flankerende konstruktioner, kan have stor betydning og endda være dominerende.
Begreberne luftlydisolation og trinlydniveau er forklaret herunder og illustreret i figur 62 og figur 63. Referencer til standarder findes i DS 490 (Dansk Standard, 2007a).
Luftlydisolation
Luftlydisolationen er et udtryk for, i hvilken grad luftlyd – fx musik fra en højttaler eller samtale – transmitteres fra et rum til et andet. Luftlyd transmitteres:
direkte gennem den rumadskillende væg eller etageadskillelse.
gennem flankerende konstruktioner.
gennem eventuelle utætheder.
Luftlyd forplanter sig primært til naborum, men også til rum længere væk.
Figur 62. Luftlyd. Kilde: Grundejernes Investeringsfond.
Trinlydniveau
Trinlydniveauet betegner den lyd, der frembringes i et rum, når gulvet i et andet rum påvirkes med en standardiseret bankemaskine. Trinlyd transmitteres:
Trinlyd forplanter sig primært, men ikke kun, til underboen.
Figur 63. Trinlyd. Kilde: Grundejernes Investeringsfond
2.7.2 Projektering af lydforhold
Arten og omfanget af de lydisolerende foranstaltninger ved etablering af tagboliger i eksisterende bygninger afhænger af de eksisterende konstruktioner. De kan være meget forskellige. Projekteringen skal altid tage udgangspunkt i den konkrete ejendom, som skal besigtiges og vurderes af en bygningskyndig rådgiver tidligt i processen.
For at opnå tilstrækkelig lydisolation er det nødvendigt, at der ved projektering lægges stor vægt på valg og vurdering af:
Ligeledes vil bygningens konkrete udformning og den udførelsesmæssige kvalitet af den valgte principløsning være afgørende for, om der opnås tilstrækkelig lydisolation. Specielt grænseværdierne for trinlydniveau stiller krav til etageadskillelsen. Uanset hvilken type etagedæk, der findes i den pågældende bygning, skal den akustiske detailprojektering have fokus på den samlede gulvkonstruktions egenskaber for at sikre overholdelse af grænseværdien for trinlydniveau.
Lydisolation af lette konstruktioner – særlige forholdsregler
Lette konstruktioner i lejlighedsskel, dvs. skillevægge med en vægt pr. arealenhed under 100 kg/m2 (skeletvægge af træ eller stål) og etageadskillelser med en vægt pr. arealenhed under 250 kg/m2, kan give problemer med utilstrækkelig lydisolation ved lave frekvenser, selv om kravene til lydisolation i DS 490, lydklasse C er opfyldt. Ved lette konstruktioner i lejlighedsskel anbefales det derfor at udvide det bygningsakustiske frekvensområde nedad til 50 Hz som beskrevet i DS 490 (Dansk Standard, 2007a). Mellem en bolig og rum uden for boligen bør følgende grænseværdier overholdes for lette konstruktioner, jf. DS 490:
Luftlydisolation, R'w + C50-3150 > 53 dB.
Trinlydniveau, L'n,w + CI,50-2500 < 53 dB.
Konstruktionsløsninger
Ved etablering af tagboliger er langt de fleste konstruktioner nye, men etageadskillelserne og eventuelle lejlighedsskel baseres på eksisterende konstruktioner. Konstruktionsløsninger kan i stort omfang findes i SBI-anvisning 172, Bygningers lydisolering: Nyere bygninger (Kristensen, 1992a) og SBI-anvisning 173, Bygningers lydisolering: Ældre bygninger (Kristensen, 1992b). Men grundlaget for disse publikationer er mere end 15 år gammelt, og da der med BR08 (Erhvervs- og Byggestyrelsen, 2009) er indført skærpelser til lydkrav, savnes i et vist omfang både nyere konstruktionsløsninger og ydeevneniveauer. Trods disse forhold findes der generelt mange brugbare informationer og løsninger i de to anvisninger. De kan suppleres med data fra producenternes hjemmesider.
2.7.3 Lydisolering af vægge omkring boliger
Der stilles krav til luftlydisolationen af lejlighedsskel, herunder vægge mod trapperum. Følgende principløsninger for tunge og lette vægkonstruktioner vil normalt kunne opfylde DS 490 (Dansk Standard, 2007a), klasse C, jf. SBi-anvisning 216, Anvisning om Bygningsreglement 2008 (Stang, 2009):
Tunge enkeltvægge med stor tykkelse, fx:
Tunge enkeltvægge med separate forsatsvægge, fx:
Tunge dobbeltvægge uden bindere, fx:
100 mm beton + 50 mm isolering + 100 mm beton.
¾ sten murværk + 50 mm isolering + ¾ sten murværk.
½ sten murværk + 110 mm isolering + ½ sten murværk.
Lette, pladebeklædte dobbeltvægge med separate opbygninger.
I tilfælde, hvor en eksisterende betonvæg eller muret væg skal benyttes som grundlag for lejlighedsskel, kan det således være nødvendigt at forbedre lydisolationen. Det kan fx kan ske ved at anvende en forsatsvæg, jf. eksempler nævnt ovenfor. Principper for detailløsninger og samlinger for sådanne konstruktioner findes i SBI-anvisning 173, Bygningers lydisolering: Ældre bygninger (Kristensen, 1992b), kap. 4, samt i (Klinkby, 1994). Ved helt nye lejlighedsskel er det i mange tilfælde mest attraktivt at benytte lette skillevægge.
Eksempler på tilslutning til tag og samlinger ved etagekryds findes i SBI-anvisning 172, Bygningers lydisolering: Nyere bygninger (Kristensen, 1992a), kap. 4.
2.7.4 Lydisolering af etageadskillelser
Der stilles krav til luftlydisolation og trinlydniveau for etageadskillelser mod andre boliger. Følgende principløsninger for tunge og lette konstruktioner vil normalt kunne opfylde DS 490 (Dansk Standard, 2007a), klasse C, jf. SBi-anvisning 216, Anvisning om Bygningsreglement 2008 (Stang, 2009):
Tunge massive dæk (fx 185 mm beton eller letklinkerbeton med tykkelse og rumvægt, der giver tilsvarende egenskaber) med gulv på strøer.
Tunge huldæk (fx 185 mm betonhuldæk) med gulv på strøer eller let, svømmende gulv samt lydisolerende underloft.
Tunge huldæk (fx 185 mm betonhuldæk) med let, lydisolerende gulv med særlig god trinlyddæmpning.
Tunge massive dæk (fx 185 mm beton) med tungt, lydisolerende gulv på underlag med god trinlyddæmpning.
Lette etagedæk med svømmende gulv på underlag med god trinlyddæmpning samt lydisolerende underloft.
Konstruktionseksempler findes i SBI-anvisning 172, Bygningers lydisolering: Nyere bygninger (Kristensen, 1992a), kap. 3 og SBI-anvisning 173, Bygningers lydisolering: Ældre bygninger (Kristensen, 1992b), kap. 4.
Underloft eller ny gulvkonstruktion
Projekteringen foretages ud fra den konkrete opbygning af det eksisterende etagedæk, som i meget få tilfælde opfylder lydkravene. Principielt kan forbedringen af lydisolationen ske ved at montere et underloft og/eller en ny gulvkonstruktion. Ulemperne ved at vælge en løsning med et underloft er, at det kræver adgang til lejligheden nedenunder, samt at etagehøjden reduceres, hvilket ikke altid er muligt under hensyntagen til minimumskrav til rumhøjde.
Eksempler på betonetageadskillelser med både underloft og træ-gulv på strøer findes i SBI-anvisning 172 (Kristensen, 1992a), kap. 3 og SBI-anvisning 173 (Kristensen, 1992b), kap. 4.
Et underloft kan give en betydelig, men ikke altid tilstrækkelig forbedring af både luft- og trinlydisolationen. Det skal opbygges som en separat konstruktion på træskelet eller skinner fra væg til væg. Alternativt kan loftet nedstroppes (nedhængt loft), men forbedringen bliver i så fald mindre. Detaljerede udførelseseksempler findes i SBI-anvisning 173 (Kristensen, 1992b). Eksempler på loftkonstruktioner til forbedring af træetageadskillelser findes også i BYG-ERFA blad (99) 94 03 16 (Klinkby, 1994) og Bedre lydisolering i eksisterende etageboliger (Grundejerens Investeringsfond, 2005a). Der er særlige krav til brandsikring af nedhængte lofter, som omtalt i afsnittet Krav til indvendige overflader i afsnit 2.6, Brandsikring.
Ved forbedring med en ny gulvkonstruktion afhænger mulighederne meget af bygningstypen og pladsforholdene. Løsninger for støbte betondæk med trægulv findes i SBI-anvisning 172 (Kristensen, 1992a), kap. 3 og SBI-anvisning 173 (Kristensen, 1992b), kap. 4, men kriterierne i DS 490 (Dansk Standard, 2007a), klasse C kan ikke opfyldes. For træetageadskillelser findes gulvløsninger i anvisning 173, men heller ikke for disse kan kravene i DS 490, klasse C opfyldes. Både for træ- og betonetageadskillelser skal der altså mere end simple, kendte løsninger til for at opnå den nødvendige forbedring.
Forbedring af træetageadskillelse
I bygninger opført før 1930 er træbjælkelag med eller uden indskuds-ler den mest almindelige form for etageadskillelse. Sådanne etageadskillelser kan ikke overholde de nuværende krav til luftlydisolation og trinlydniveau, og en del af problemet kan være utætheder. Ifølge SBI-anvisning 173 (Kristensen, 1992b) kan der for typiske etageadskillelser med lerindskud opnås luftlydisolation R'w 45-50 dB og trinlydniveau L'n,w 63-75 dB. Følgelig er det nødvendigt at forbedre luftlydisolationen med 5-10 dB og trinlydisolationen med 10-20 dB for at kunne overholde grænseværdierne på hhv. R'w min. 55 dB og L'n,w max 53 dB. Der skal foretages mere end almindelige tiltag for at opnå dette.
I et forsøgsprojekt med ældre træetageadskillelser (Grundejernes Investeringsfond, 2005a), se figur 64, indgik tre typer af konstruktionsløsninger. Målet var at forbedre luftlyd- og trinlydisolationen, så kravene i BR08 (Erhvervs- og Byggestyrelsen, 2009) opfyldes. En løsning var at udskifte såvel indskud som gulvkonstruktion. En anden at tilføje en ny gulvkonstruktion, mens den tredje løsningsmodel var at tilføje et nedhængt loft. Se principskitserne i figur 65, figur 66 og figur 67 (konstruktionstype I, II og III). Der blev gennemført laboratorie- og feltmålinger på konkrete løsninger inden for alle tre typer.
Figur 64. Principskitse af en typisk træetageadskillelse. Kilde: Grundejernes Investeringsfond.
Figur 65. Principskitse af konstruktionstype I. Ændringer i etageadskillelsen: Det eksisterende gulv fjernes, herefter udføres der lydisolerende arbejder i selve etagedækket, og et nyt gulv udlægges. Kilde: Grundejernes Investeringsfond.
Figur 66. Principskitse af konstruktionstype II. Etablering af blændgulv: Der udlægges lyddæmpende materialer direkte oven på det eksisterende gulv, og herpå udlægges et nyt blændgulv. Kilde: Grundejernes Investeringsfond.
Figur 67. Principskitse af konstruktionstype III. Nedhængt loft: Der monteres et nedhængt loft af gipsplader med lydabsorberende materialer i hulrummet og eventuelt ny stuk.
Kilde: Grundejernes Investeringsfond.
Alle tre typer af løsninger resulterede i en luftlydisolation, der opfylder grænseværdien for DS 490 (Dansk Standard, 2007a), klasse C, men krav til trinlydniveauet blev kun opfyldt for specifikke løsninger af konstruktionstype I, se detailtegning figur 68. Detailløsninger med arbejdsbeskrivelser og måleresultater findes på www.ejendomsviden.dk/Nabostoj.
Figur 68. Detailtegning af eksempel på konstruktionstype I, som opfylder kravet til trinlydisolation. Bærende gulv på stålbeslag (hatteprofiler). Kilde: Grundejernes Investeringsfond.
For hovedparten af de undersøgte løsninger vurderes de foreslåede ændringer af etageadskillelsen ikke at påvirke brandmodstandsevnen. Undtagelsen er en løsning med svømmende gulv udlagt på genudlagte gulvbrædder, når disse er udlagt med mellemrum (specifik løsning af type I). Her kan brandmodstandsevnen være reduceret, og anvendelse af denne løsning bør derfor aftales med bygningsmyndigheden. Samtidig overholder løsningen ikke trinlydkravet, så alene det forhold kan forhindre anvendelsen af denne løsning.
For hver af de anviste løsninger gælder, at de skal tilpasses den konkrete ejendom. Forsøgsprojektet indeholder yderligere forslag til lydisolerende tiltag i etageadskillelser, som dog ikke er afprøvet i praksis.
I et andet projekt beskrevet af Maxit (Maxit, 2004), blev løsningen vist i figur 69 udviklet til renovering af tagboliger. Løsningen blev udviklet til overholdelse af BR95, men har også potentiale til opfyldelse af de skærpede krav i BR08 (Erhvervs- og Byggestyrelsen, 2009). Luftlydisolationen er målt til 64 dB og opfylder dermed kravet på min. 58 dB, mens gennemsnittet af to målinger af trinlydisolationen er på niveau med kravet på maks. 53 dB. Målingerne viser henholdsvis 50 og 55 dB. Det vurderes, at denne løsning ikke påvirker brandmodstandsevnen af etageadskillelsen.
Figur 69. Renovering af træetageadskillelse, detailtegning. Kilde: Nyt gulvkoncept fra Maxit reducerer nabostøj mellem etagerne (Maxit, 2004)
Efter 1930 er betondæk blevet mere almindelige som etageadskillelse. I langt de fleste tilfælde vil sådanne konstruktioner heller ikke kunne opfylde de nugældende krav, bl.a. som følge af en utilstrækkelig vægt. Ved etablering af tagboliger på sådanne etageadskillelser eller tagdæk må der benyttes et svømmende gulv og/eller et underloft, jf. SBI-anvisning 172, Bygningers lydisolering: Nyere bygninger, (Kristensen, 1992a), og SBI-anvisning 173, Bygningers lydisolering: Ældre bygninger (Kristensen, 1992b), eller der må udvikles nye gulv- og/eller loftopbygninger.
2.7.5 Trapperum
Akustisk regulering af trapperum kan projekteres efter principperne i SBI-anvisning 172, Bygningers lydisolering: Nyere bygninger (Kristensen, 1992a), kap. 7.
2.7.6 Lyd og installationer
Installationer kan både fungere som støjkilder og som transmissionsveje, idet lyd fx kan transmitteres fra et rum til et andet via varmerør, andre rørføringer og ventilationskanaler. Mange former for rør og kabler går gennem vægge og etageadskillelser, og det er vigtigt, at der er helt tæt omkring gennemføringerne, da lyd kan transmitteres gennem utætheder. Der må ikke være fast forbindelse mellem rør og konstruktion, ligesom rørene ikke må skabe kobling mellem to konstruktionsdele. Derfor skal der være elastisk mellemlæg mellem rør og konstruktioner. Lydtransmission mellem boliger via radiatoranlæg reduceres ved hjælp af en central lodret stigledning placeret hensigtsmæssigt. Ventilationskanaler, som forbinder flere rum, skal normalt forsynes med lyddæmpere.
Elevatorer bør placeres i trappetårne eller midt i trapperum for at undgå støj i boliger.
Lydtransmission og støj relateret til installationer er beskrevet i SBI-anvisning 172, Bygningers lydisolering: Nyere bygninger (Kristensen, 1992a), kap. 6.
2.7.7 Lydisolering af tag og ydervægge
Det eksterne støjniveau fra trafik kan nødvendiggøre projektering af lydisolation. På det punkt adskiller forholdene for tagboliger sig dog ikke væsentligt fra projektering af andre boliger. Normalt er tag og ydervægge ikke kritiske, og det er primært et spørgsmål om krav til vinduer. Eksempler på konstruktioner findes i SBI-anvisning 172, Bygningers lydisolering: Nyere bygninger (Kristensen, 1992a), kap. 3 og SBI-anvisning 173, Bygningers lydisolering: Ældre bygninger (Kristensen, 1992b), kap. 4.
2.7.8 Lydforhold internt i boliger
Der er generelt ikke krav til lydisolation mellem de enkelte rum internt i boliger, men lyd fra andre rum i samme bolig kan blive generende. Bygherren kan derfor vælge at stille krav til boligens interne lydisolation, fx om tilstrækkelig lydmæssig adskillelse af udvalgte rum i en boligenhed. Dette gøres ved at definere grænseværdier for luftlydisolation og trinlydniveau, hvilket er særlig relevant for tagboliger i to etager.
Almindeligvis gælder, at lydisolationen forbedres, når tyngden af konstruktionen øges. Fx kan man lydisolere skeletvægge bedre både ved at benytte separat skelet for de to vægsider og benytte flere lag pladebeklædning på hver side. I SBI-anvisning 172, Bygningers lydisolering: Nyere bygninger (Kristensen, 1992a) findes eksempler på indvendige vægge med forskellige niveauer af lydisolation.
I rum med stor lofthøjde, herunder dobbelthøje rum, bør der være særlig fokus på rummets akustik. Uden lydabsorberende overflader kan der blive en utilfredsstillende akustisk kvalitet (lang efterklangstid). Lydabsorption projekteres efter samme principper som for trapperum.