Gå til indhold

3 Funktion

Med funktion menes den daglige brug af den enkelte tagbolig, og hvad man skal være opmærksom på, for at beboerne får den størst mulige glæde af boligen. Som udgangspunkt kan man også anvende tagetagen til andre formål end boliger, fx til institutioner, lægeklinikker eller en fælles tagterrasse for beboerne på de øvrige etager, men denne anvisning fokuserer på anvendelse til tagboliger.
Tagetagens indretning og de krav, det stiller til adgangsveje, hænger til en vis grad sammen med, om etagen indrettes til beboelse i form af særskilte lejligheder eller via udvidelse af eksisterende lejligheder opad.
Tagformen er bestemmende for, hvor meget plads der bliver til rådighed til den enkelte tagbolig. De mulige tagformer vil ofte være styret af arkitektoniske hensyn til det ydre, ikke mindst i ældre etageejendomme der støder direkte op til nabobygninger.
Mulighederne for at indrette boligen vil i høj grad afhænge af, hvor føringsveje til installationer er placeret, hvilket igen afhænger af, om man vælger at placere køkken og vådrum samme sted som på de underliggende etager. Ved indretning af nye boliger i tagetagen stilles der krav i Bygningsreglementet om, at der skal være adgang med elevator til de nye boliger, såfremt bygningen er på 3 etager og derover. Kravet gælder dog ikke ved udvidelse af eksisterende lejligheder opad.
Bygningsreglementet stiller også krav om tilfredsstillende udearealer, hvilket både dækker fælles udendørs opholdsarealer og parkeringspladser.
I eksempelsamlingen på www.sbi.dk/tagboliger findes oplysninger om gennemførte tagboligprojekter, som kan give inspiration til, hvordan tagetagen kan indrettes.

3.1 Boligens indretning

krav om hensigtsmæssige størrelser på loftshøjde, indretning, gangbredde etc.
I BR08, kap. 3.3 (Erhvervs- og Byggestyrelsen, 2009) stilles krav til indretning af boliger, dels i form af generelle krav om en hensigtsmæssig størrelse, lofthøjde, indretning og gangbredde, dels i form af specifikke krav til dørbredder. De generelle krav suppleres med anbefalede minimumsmål, fx til indretning af bade- og wc-rum. Disse krav gælder også for nye tagboliger.
 Den tilgængelige bolig med tilhørende ganglinjer.
Figur 70. Den tilgængelige bolig med tilhørende ganglinjer.
Kilde: SBi-anvisning 222, Tilgængelige boliger (Sigbrand & Jensen, 2008).
Som udgangspunkt bør boligen indrettes, så den umiddelbart eller med minimale ændringer bliver egnet for personer med handicap. Det betyder bl.a. niveaufri adgang, brede døre og et rummeligt bade- og wc-rum. SBi-anvisning 222, Tilgængelige boliger (Sigbrand & Jensen, 2008) giver gode anvisninger på, hvordan en bolig kan indrettes, så fx en kørestolsbruger, en halvsidigt lammet eller en synshandicappet kan anvende boligen. Se også DS 3028, Tilgængelighed for alle (Dansk Standard, 2001).
Kun i det tilfælde, hvor opfyldelse af bygningsreglementets kap. 3.3 kræver, at der foretages gennemgribende ændringer i bygningen, kan der ske lempelser, jf. BR08, kap. 3.1 stk. 2 (Erhvervs- og Byggestyrelsen, 2009). Det er op til byggesagsmyndigheden, om der kan ske lempelser i det konkrete tilfælde.
Indretning af loftetagen skal også tage hensyn til krav til placering af bærende eller afstivende vægge.

3.1.1 Små eller store lejligheder – indretningsmuligheder

Tagboliger skal opfylde de samme krav til indretning som nye boliger generelt, men den eksisterende bygnings ydre dimensioner betyder, at tagboliger ofte vil være forholdsvis små, ikke mindst når de indrettes i eksisterende loftrum med skråtag. Samtidig er muligheden for at få en type 2 elevator placeret uden større indgreb ofte stærkt begrænset. I så fald er det ikke realistisk, at en kørestolsbruger kan bo der. Det kan derimod fx en rollatorbruger, en gigtramt eller en synshandicappet, hvorfor tilgængeligheden for bl.a. disse grupper bør indarbejdes ved projektering af boligens rum. En rollatorbruger behøver 1,1 × 1,1 m til at vende 90° og 1,3 × 1,3 m til at vende 180°.
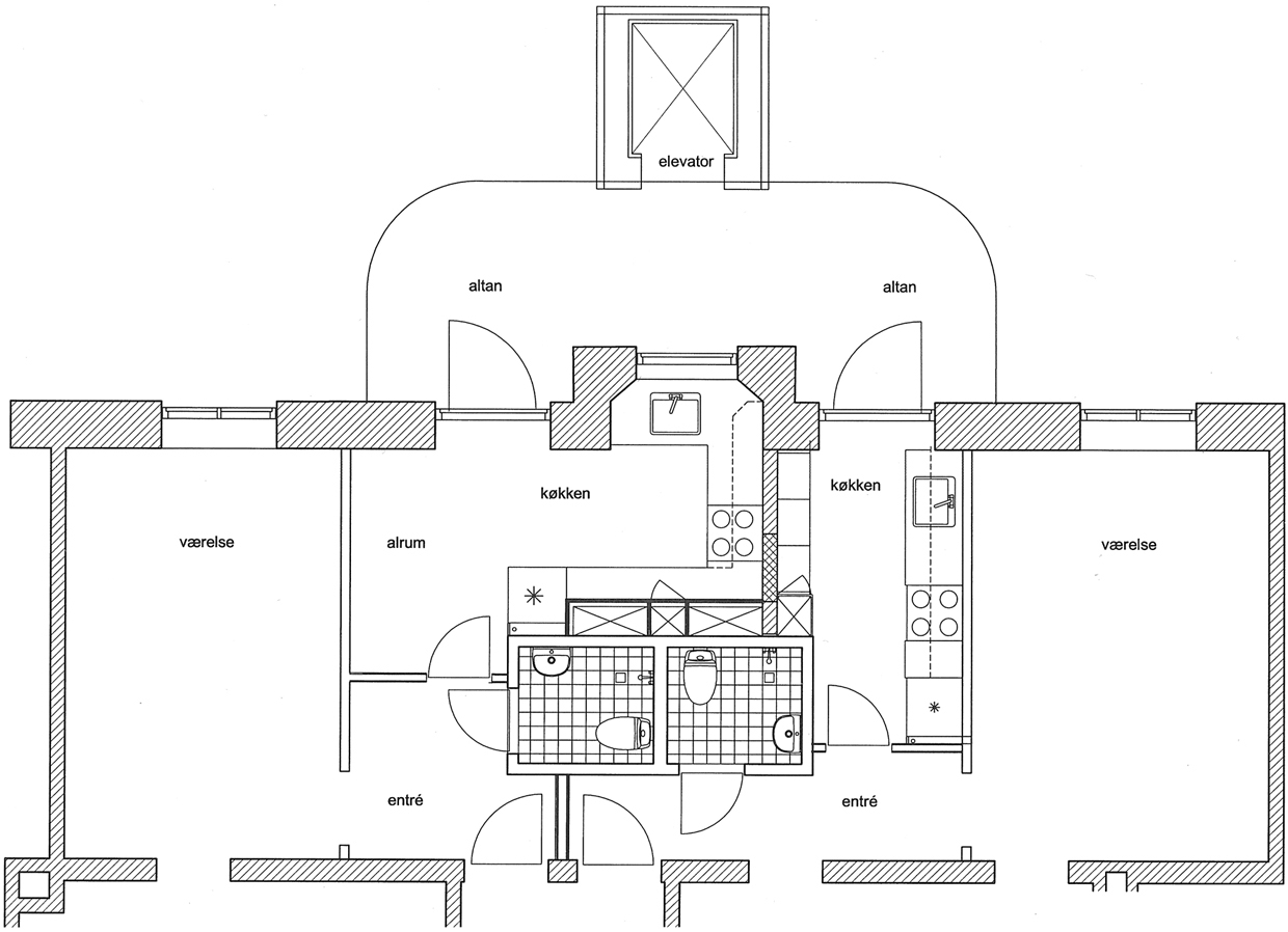
Det kan derfor vise sig, at bagtrapperummet skal inddrages i de eksisterende boliger for at opnå den nødvendige plads. Et eksempel er vist på figur 71 og figur 72. På den måde øges boligernes brugsværdi betragteligt, idet det så også bliver muligt for gangbesværede personer at komme på besøg. Se afsnit 3.3, Adgangsforhold og afsnit 3.5, Flugtveje og redningsforhold.
 Eksempel på ombygning af bagtrapperum til køkken samt etablering af elevatoradgang via nye altaner med direkte adgang fra køkken.
Figur 71. Eksempel på ombygning af bagtrapperum til køkken samt etablering af elevatoradgang via nye altaner med direkte adgang fra køkken. (Erhvervs- og Boligstyrelsen, 2004a). Kilde: Pålsson Arkitekter AS.
Forholdene før ombygningen vist i figur 71.
Figur 72. Forholdene før ombygningen vist i figur 71. (Erhvervs- og Boligstyrelsen, 2004a). Kilde: Pålsson Arkitekter AS.
I det hele taget kan begrænsede pladsforhold være styrende for, hvordan tagboligen kan indrettes. En løsning kan være, at lade køkkenet stå i åben forbindelse med stuen. Derimod bør man uanset pladsforhold så vidt muligt forsøge at få plads til en altan e.l.
Indretning med åben forbindelse mellem køkken og stue.
Figur 73. Indretning med åben forbindelse mellem køkken og stue. Foto: Dorthe Krogh.
Boligens brugsmæssige kvalitet øges, når den kan indrettes på flere måder. Det kan være med til at sikre, at boligen kan tilpasses beboernes ændrede ønsker. Ligeledes kan en stor lofthøjde, fx opnået med loft til kip, forbedre den rumlige kvalitet og indeklimaet. Således kan stor lofthøjde kombineret med vinduer placeret tæt på kippen sikre gode dagslysforhold længere inde i rummene.
Opholdsrum i tagbolig med stort lysindfald.
Figur 74. Opholdsrum i tagbolig med stort lysindfald. Foto: sbs.
Tagboliger ses også indrettet som penthouselejligheder, typisk hvor bygningen tilføjes en ekstra etage. I så fald vil det være uproblematisk at indrette dem, så også kørestolsbrugere kan bo i dem eller besøge dem, idet pladsforholdene giver mulighed for at indrette baderum og køkken med frie gulvarealer på mindst 1,5 × 1,5 m.
En måde at udnytte et eksisterende loftrum til tagboliger på, er at udvide eksisterende lejligheder opad. Man vil som regel udnytte udvidelsen opad til opholds- eller soverum, mens man bibeholder køkken og bade- og wc-rum i den hidtidige lejlighed, da de er dyre at flytte. Dog kan udvidelsen af lejligheden opad give plads til at udvide det eksisterende køkken og/eller bade- og wc-rum. SBi-anvisning 216, Anvisning om Bygningsreglement 2008, 3.3.1 Boligers indretning (Stang, 2009) anbefaler, at adgangsetagen i nye boliger i flere etager som minimum indeholder køkken, et soverum, et opholdsrum og et rummeligt bade- og wc-rum, men pladsforholdene i en ombygget lejlighed under taget kan forhindre dette.
Særlige krav til bade- og wc-rum og køkken er beskrevet i afsnit 3.2, Vådrum og køkken.

3.1.2 Beboelsesrum

I de tilfælde, hvor tagboliger indrettes i eksisterende loftrum, bør man af pladshensyn overveje at indrette boligen på en måde, så man så vidt muligt undgår gangarealer. Hvis man indretter tagboliger med gangarealer, skal man være opmærksom på bygningsreglementets krav til gangbredder på mindst 1,0 m i adgangsrum (vindfang, entre mv.). Hvis der er døre eller skabe i gangens sider, bør bredden forøges med 0,3 m, således at en kørestols- eller rollatorbruger kan vende 90°.
Døre i boligens adgangsetage skal have en fri bredde på mindst 0,77 m. Dette sikrer, at både en kørestolsbruger og en rollatorbruger kan passere. Dørtrin bør ikke overstige 2,5 cm.
Kravene til indretning af beboelsesrum (soverum, opholdsrum etc.) er mere frie end køkken og vådrum. Der er fokus på god plads, og at der er flere muligheder for møblering, så rummene efter behov kan opfylde flere funktioner. 
Hvis taget har stor rejsning, kan der være mulighed for at etablere en hems under kippen. Man skal i så fald være opmærksom på, at hanebåndet ofte skal forstærkes for at kunne bære den øgede last eller evt. understøttes med stolper. Se nærmere i afsnit 2.2, Ombygning af eksisterende tagkonstruktion.
Snittegning af tagbolig med hems og udvendigt elevatortårn.
Figur 75. Snittegning af tagbolig med hems og udvendigt elevatortårn. I forbindelse med udskæring i taget til de nye tagboliger har det været nødvendigt at forstærke dele af spærkonstruktionen (Erhvervs- og Boligstyrelsen, 2004a). Kilde: Pålsson Arkitekter AS.

3.1.3 Uderum (altan/tagterrasse)

Uderum i form af en altan eller en tagterrasse tilfører tagboligen en øget attraktionsværdi, ikke mindst hvis pladsforholdene under taget er begrænsede. Til gengæld er det yderst kompliceret at udføre altaner og tagterrasser fugtteknisk korrekt, som beskrevet i Tagterrasser i afsnit 2.5, Etageadskillelse. Det er derfor meget vigtigt, at de projekteres, planlægges og udføres med stor omtanke. Der henvises til BYG-ERFA blade om tagterrasser, (47) 07 05 03, (27) 08 04 30 (hhv. Bunch-Nielsen & Christensen, 2007, 2008), (23) 07 12 29 (Bunch-Nielsen, Christensen & Dons, 2007), samt SBi-anvisning 224, Fugt i bygninger (Brandt et al., 2009) og TOR-anvisning 22 (Tagpapbranchens Oplysningsråd, 2001).
Der skal etableres niveaufri adgang til altaner, jf. BR08, kap 3.2.2 stk. 2 (Erhvervs- og Byggestyrelsen, 2009). Fritaget for kravet er terrasser på bygningens tag, såfremt der ikke er adgang til taget med elevator.
Etablering af en altan eller terrasse kan medføre indgreb i den eksisterende tagkonstruktion, idet der typisk er behov for udveksling af spær, jf. afsnit 2.2, Ombygning af eksisterende tagkonstruktion. Muligheden for at udveksle spær kan være afgørende for, hvor stor en altan der kan indrettes. 
Muligheden for at indbygge altaner øges med dybden af bygningen. En anden løsning er at knytte altaner til alle boliger ved at bygge et altantårn på gårdsiden.
Københavns Kommune har beskrevet sine retningslinjer vedr. opsætning og renovering af altaner på eksisterende bygninger, herunder hvilke konstruktive forhold der skal redegøres for, på:
www.kk.dk/Borger/BoligOgByggeri/Byggetilladelse/Konstruktioner/Altaner.
Kvist med direkte adgang til det fri.
Figur 76. Kvist med direkte adgang til det fri. Foto: Knauf Danogips A/S.
Tagbolig med altan.
Figur 77. Tagbolig med altan. Foto: Tagbolig A/S.
Lejligheder med kviste og med direkte adgang til tagterrasse
Figur 78. Lejligheder med kviste og med direkte adgang til tagterrasse. Foto: Tagbolig A/S.
Altan indbygget i tagfladen.
Figur 79. Altan indbygget i tagfladen, Københavnertag. Foto: Tagbolig A/S.
Der ses også eksempler på altaner placeret tæt på kippen, som vist på figur 80. Her skal man være opmærksom på, at det kan være vanskeligt at benytte altanen som redningsåbning. Det kræver en vandret afstand fra altanen til facaden på højst 1,4 m.
 Altaner i tag, tæt på kip. Sadeltag.
Figur 80. Altaner i tag, tæt på kip. Sadeltag. Altanerne kan være problematiske at anvende som redningsåbninger. Foto: BvB.
En tagterrasse kan enten knyttes til den enkelte bolig eller indrettes med fælles adgang for alle beboere. Egentlige tagterrasser er pladskrævende og etableres derfor normalt kun, hvis den øverste etage indrettes til penthouselejligheder, eller hvis der indrettes en særskilt tagterrasse på hele etagen. Se eksempelsamlingen på www.sbi.dk/tagboliger. En fælles terrasse vil til gengæld være til glæde for alle beboere. En mellemløsning er en svalegang, der dels giver adgang til de enkelte tagboliger, dels kan benyttes som opholdsrum.

3.2 Vådrum og køkken

Placering af vådrum (fx bade- og wc-rum) og køkken bestemmes ofte af muligheden for at etablere de nødvendige installationer i form af vand, afløb og ventilation, se afsnit 4.6, Vand og afløb. Især afløbsinstallationer skal som hovedregel være i nærheden af eksisterende faldstammer for at sikre tilstrækkeligt fald på afløbsledningerne; alternativt må der etableres nye faldstammer. 
Ved etablering af tagboliger (i etageejendomme) er der krav i bygningsreglementet om mekanisk ventilation i køkken og bad, herunder specifikke krav til fjernelse af indeluft med en volumenstrøm på henholdsvis 20 l/s fra køkkener og 15 l/s fra bade- og wc-rum, se BR08, kap. 6.3.1.2, stk. 1. Ventilation fra tagboliger kan evt. etableres som selvstændig ventilation, fx ved selvstændige udluftningskanaler/ventilatorer fra køkken og bad. Der er desuden krav til, hvorledes frisklufttilførsel sikres, jf. SBi-anvisning 216, Anvisning om Bygningsreglement 2008 (Stang, 2009).
Både køkken og bad bør placeres op ad ydervæg, så der er mulighed for dagslysadgang og frisklufttilførsel gennem oplukkelige vinduer.
I de tilfælde, hvor etablering af tagboliger kombineres med indbygning af vådrum i de øvrige lejligheder, bør man undersøge muligheden for at benytte præfabrikerede units, der hejses ind, eller hele elementer der samles på stedet, se fx Komponentbadeværelser (Bygge- og Boligstyrelsen, 1997). Dette gælder, uanset om de placeres inden for den eksisterende etageplan, ved nedlæggelse af en bagtrappe, eller som en udbygning mod gården. Pladsforholdene vil ofte være ganske små, men ved at benytte præfabrikerede units, kan man lægge hovedparten af arbejdsprocessen på fabrik, hvor der er adgang til vådrummet fra alle sider. Tilsvarende vil arbejdsprocessen på byggepladsen tage kortere tid. Uanset hvilken løsning man vælger, skal man sikre sig, at den eksisterende konstruktion kan bære den ekstra belastning.
Præfabrikeret vådrumselement.
Figur 81. Præfabrikeret vådrumselement. Foto: VELUX A/S.
Præfabrikeret vådrumselement
Figur 82. Præfabrikeret vådrumselement. Foto: VELUX A/S.
Præfabrikeret vådrum.
Figur 83. Præfabrikeret vådrum. Foto: Karsten Pålssons Tegnestue. (Erhvervs- og Boligstyrelsen, 2002).

3.2.1 Pladsforhold i vådrum

I et bade- og wc-rum bør der være 1,1 m fri plads foran faste installationer for at opfylde bygningsreglementets krav til pladsforhold. I lig-hed med køkkener giver det kun akkurat plads nok til, at en rollatorbruger kan vende 90°. Dette vil i mange tilfælde være tilstrækkeligt for en gæst, mens en beboer med rollator vil behøve 1,3 × 1,3 m frit vendeareal, som er fri af dørens opslagsareal, så døren kan lukkes. En rollatorbruger vil ofte støtte sig til vasken, hvorfor væggen bør kunne optage den ekstra vægt. Hvis man ønsker, at rummet skal kunne anvendes ved hjælp i hjemmet, giver SBi-anvisning 216, Anvisning om Bygningsreglement 2008, 3.3.2 Bade- og WC-rum (Stang, 2009) minimumsmål til indretningen. Den ekstra gulvplads kan, indtil der bliver behov for den til kørestol eller rollator, anvendes til fx en vaskesøjle med tilhørende bord til sortering af tøjet.

3.2.2 Vådrum – krav til udførelse

Vådrum i tagboliger er primært bade- og wc-rum med gulvafløb, men kan også omfatte bryggers. Vådrum skal udføres omhyggeligt, da følgeskader fra utætheder kan være omfattende og meget kostbare at udbedre.
Vådrum i tagboliger skal – som alle andre vådrum – udføres i henhold til By og Byg Anvisning 200, Vådrum (Brandt, 2001). Det væsentligste krav er, at gulve og vægge, herunder samlinger, tilslutninger og rørgennemføringer, skal være vandtætte. Især skal konstruktioner, hvori der indgår træ eller andet organisk materiale, sikres mod indtrængning af vand. Herudover skal konstruktionerne kunne modstå andre normalt forekommende påvirkninger, fx personophold, kemikaliepåvirkning og høj fugtbelastning, uden at det medfører skade.
Ved indbygning af vådrum i ældre bygninger skal man være opmærksom på, at vådrummets konstruktioner ikke skades af evt. deformationer i de tilstødende bygningsdele. Øget belastning af træbjælkelag og bindingsværksvægge kan give deformationer, og man skal sikre sig, at fugtindholdet i de eksisterende trækonstruktioner i gennemsnit er bragt ned under 13 vægt-%. I By og Byg Anvisning 200, Vådrum (Brandt, 2001) og Gode vådrum ved bygningsrenovering (Byggeskadefonden vedr. Bygningsfornyelse, 2002) beskrives de nødvendige forholdsregler nærmere.
Vådzone og fugtig zone i vådrum med bruseniche.
Figur 84. Vådzone og fugtig zone i vådrum med bruseniche. Kilde: By og Byg Anvisning 200, Vådrum (Brandt, 2001).
Vådzone og fugtig zone i vådrum med fastmonterede skærmvægge.
Figur 85. Vådzone og fugtig zone i vådrum med fastmonterede skærmvægge. Kilde: By og Byg Anvisning 200, Vådrum (Brandt, 2001).
Vådzone og fugtig zone i vådrum med badekar.
Figur 86. Vådzone og fugtig zone i vådrum med badekar. Kilde: By og Byg Anvisning 200, Vådrum (Brandt, 2001)
Væg med håndvask regnes kun til vådzone, hvis der er armatur med bruser over håndvasken.
Figur 87. Væg med håndvask regnes kun til vådzone, hvis der er armatur med bruser over håndvasken. Kilde: By og Byg Anvisning 200, Vådrum (Brandt, 2001).

Zoneinddeling

Ved udførelse af nye vådrum vil der ofte være forskellige krav til udførelsen, afhængig af hvor i rummet man er. Der skelnes mellem vådzone og fugtig zone, se figur 84 til figur 87.
Vådzonen omfatter den del af rummet, hvor der jævnligt må forventes direkte vandpåvirkning. Her stilles de strengeste krav til konstruktioner, materialer og overfladebehandlinger. Vådzonen omfatter hele gulvet, de nederste 100 mm af alle vægge samt vægge ved bruseniche, badekar og håndvask med brusearmatur. Anvendes fastmonterede skærmvægge, afgrænser disse vådzonen på væggene, se figur 85.
Fugtig zone er vægområdet uden for vådzonen. Også her må der påregnes større påvirkninger end i boligens øvrige rum, fx fra høj relativ luftfugtighed og lejlighedsvis vandpåvirkning. Der stilles derfor også i fugtig zone skærpede krav til materialevalg og konstruktionsopbygning.

Vandtæthed

For at sikre vandtætheden af gulve og vægge er vandtæt behandling eller beklædning normalt nødvendig. Ved tagboliger vil gulve som regel blive udført af beton, eventuelt ved udstøbning af beton på det eksisterende træbjælkelag. Gulvets vandtæthed sikres yderligere med en overfladebehandling – i reglen et MK-godkendt flisesystem. Kun i særlige tilfælde, fx ved brug af terrazzo, kan kravet om vandtæt overfladebehandling fraviges.
Vægge kan både udføres af uorganiske og organiske materialer. I vådzonen er der krav om, at skeletvægge og vægge, der indeholder organisk materiale, skal udføres med vandtæt beklædning, som normalt er et MK-godkendt flisesystem. Det er et krav, at MK-godkendte vandtætte flisebeklædninger indeholder et egentligt vandtæt lag med en tykkelse på mindst 1 mm. Også øvrige vægtyper bør forsynes med vandtæt beklædning i vådzone.
I den fugtige zone kan skeletvægge og vægge, der indeholder organisk materiale, udføres efter mere lempelige regler, og her er det fx muligt at udføre malebehandlede skeletvægge eller flisebeklædte vægge uden membran. Det er dog en forudsætning, at de udføres med et særligt vådrumsmalesystem eller vådrumsflisesystem, som skal have dokumentation for at opfylde kravene til at opnå MK-godkendelse. Uorganiske materialer kan normalt anvendes i fugtig zone, når blot de forsynes med en vandafvisende overfladebehandling, fx fliser eller malebehandling. Se også BYG-ERFA blad (42) 02 10 16 (Brandt, Jensen & Svane, 2002).
Vand fra vægge skal ledes ud på gulvet, og væggen skal derfor samles vandtæt med gulvet, eller væggens vandtætte lag skal føres ud over og overlappe gulvets opkant. Vand fra gulvet skal hindres i at løbe ud ad døren. Det kan sikres ved at gulvniveauet umiddelbart foran døren er mindst 30 mm over risten på gulvafløbet, eller ved at der laves en vandtæt opkant, fx støbt, på mindst 20 mm under døren. Derved kan gulvet opsamle en vis vandmængde, fx fra en utæt vandinstallation.

Fald på gulv

De områder af gulvet, hvor der dagligt må forventes direkte vandpåvirkning, skal have fald mod afløb og skal være uden lunker. Disse områder er vist skraveret på figur 84 til figur 87. Faldet bør være 1-2 %, under fritstående badekar og fast inventar dog mindst 2 %. Øvrige områder af gulvet bør også udføres med et lille fald mod afløb for at undgå risiko for bagfald og lunker.
Vand fra brusenichen bør hindres i at løbe ud over den øvrige del af gulvet, hvilket bedst sker ved at gulvet i brusenichen forsænkes. En forsænkning på 10 mm vil normalt være tilstrækkelig. Det forsænkede område bør være så stort, at vand fra et eventuelt badeforhæng vil dryppe af inde i forsænkningen.

Vand- og afløbsinstallationer

Gennemføringer af installationer skal være vandtætte. Gennemføringer må ikke forekomme i den mest vandbelastede del af gulvet, vist med mørk farve på figur 84 til figur 87. Gulvafløb bør være VA-godkendt til den pågældende type gulvkonstruktion og gulvbelægning. De bør så vidt muligt være med lodret udløb. Der kan være andre måder at opfylde bygningsreglementets krav på, end en VA-godkendelse, men en VA-godkendelse er den enkleste måde at dokumentere kravene på.
Se også afsnit 4.6, Vand og afløb samt BYG-ERFA blad (53) 01 09 28 (Brandt, Kaufmann & Godtkjær, 2001) og (43) 02 09 26 (Brandt & Nielsen, 2002).

Lofter

Lofter bør udføres, så fugtig luft ikke kan trænge ind i tilstødende bygningsdele eller rum. Mod uopvarmede rum kan lufttæthed normalt sikres ved brug af en dampspærre i loftkonstruktionen.
Der stilles ikke krav til overfladehandlingen af lofter i vådrum, men det er en fordel, hvis behandlingen kan tåle lettere vandpåvirkning.

Fuger

Vandtætheden af en vådrumskonstruktion må aldrig afhænge af en (elastisk) fuge, og der stilles derfor ikke særlige krav om, at fuger skal kunne udføres vandtætte.
Til fugning anvendes fleksible mørtelfuger, dvs. cementbaserede fugemørtler med tilsætning af plastmateriale, som gør den færdige fuge mere fleksibel end en ren cementbaseret fuge. Denne fugetype kan normalt også anvendes i hjørner, omkring gulvafløb mv. Kun hvor der forventes særlig store bevægelser, er der behov for elastiske fuger. Elastiske fuger stiller særlige krav til fugens geometri – tilstrækkelig bredde og dybde – for at sikre, at de forventede bevægelser kan optages. Der bør anvendes bundstop eller sliptape som modhold for fugemassen og primer til at sikre vedhæftning til kontaktfladerne.

3.2.3 Køkken

Køkkener i tagboliger har tit skråvægge på den ene side, hvilket begrænser indretningsmulighederne, idet overskabe mv. kun kan hænges på de lodrette vægflader. Desuden begrænser skråvæggene det gulvareal, der er anvendeligt som arbejdsplads, idet arbejdspladser under skråvægge bør have en fri højde på mindst 2,1 m, typisk ved forkant af bordplade og lign.
Køkkenet bør placeres i boligen, så der er god kontakt til andre rum, evt. som en integreret del af et opholdsrum. Indretning af køkken i åben forbindelse med stuen frem for et separat køkken sparer plads og kan gøre indretningen og brugen af boligen mere fleksibel. Dette er særlig relevant ved etablering af tagboliger på begrænset plads.
Det er vigtigt med god plads, og køkkenet bør så vidt muligt disponeres, så der er mulighed for at flere personer kan arbejde i det samtidig. Om muligt bør der etableres mindst 4,4 m køkkenbord med en højde på 850 eller 900 mm. Der skal mindst være mulighed for indretning af en tilberedningsplads, en kogeplads og en opvaskeplads. Der skal ifølge bygningsreglementet etableres emhætte over komfur. Emhætten skal have afkast til det fri og have tilstrækkelig effektivitet til at opfange de luftformige forureninger fra madlavning. Der bør etableres dagslysadgang og/eller lampeudtag over alle arbejdspladser.
For nye køkkener kræver bygningsreglementet, at køkkenet skal indrettes med plads til at køkkenarbejdet kan foregå på en hensigtsmæssig og betryggende måde. Bygningsreglementets krav om plads i køkkenet kan opfyldes ved at sørge for 1,1 m fri plads foran arbejdspladserne.
En fri afstand på 1,1 m foran arbejdspladsen tilgodeser akkurat en rollatorbrugers behov, såfremt vedkommende kun skal vende 90°, men mere plads øger komforten og 1,3 × 1,3 m gør det muligt at vende 180°. Ved indretning af et elementkøkken kan man med fordel anvende løse elementer, fx ved vasken, så ældre har mulighed for at sidde ned med benene inde under vasken. Af hensyn til bl.a. synshandicappede bør låger på overskabe i åben tilstand ikke rage ud over køkkenbordets forkant. Herved undgås risikoen for at støde hovedet ind i en (glemt) åben låge.
Yderligere oplysninger om hensigtsmæssig adgang for bevægelseshæmmede findes i SBi-anvisning 222, Tilgængelige boliger (Sigbrand & Jensen, 2008).
Køkkenet bør forsynes med rigelige elinstallationer også til evt. fremtidig udvidelse eller ændring i anvendelsen af rummet og køkkenudstyret. Der bør både være adgang (eller forberedt adgang) til 400 V og 230 V. Bygningsreglementet kræver, at der etableres mekanisk udluftning (i etageboliger). Det gælder dog ikke i de tilfælde, hvor loftetagen udnyttes ved at udvide eksisterende lejligheder opad.

3.3 Adgangsforhold

Tagboliger kræver, at adgangsvejenes tilstand ogudformning vurderes.
Når man vælger at indrette tagboliger i en eksisterende bygning, bør adgangsvejenes tilstand og fremtidige udformning vurderes i relation til tagboligernes og de andre lejligheders brugere.
Således vil etablering af elevator til alle etager øge de øvrige boligers kvalitet, ved at sikre adgang for mennesker, hvis funktionsevne er nedsat, fx kørestolsbrugere, gangbesværede samt små børn og ældre. Man skal være opmærksom på, at gode adgangsforhold ikke kun er til gavn for beboerne, men i høj grad også for besøgende, fx venner og familie. Den unge søn/datter i en eksisterende bolig på fx 4. sal vil herved kunne få besøg af gangbesværede familiemedlemmer og venner.

3.3.1 Tilgængelighed

Som udgangspunkt skal bygningsreglementets krav i kap. 3.2 om tilgængelighed (Erhvervs- og Byggestyrelsen, 2009) opfyldes ved etablering af nye tagboliger, herunder krav til:
  • Niveaufri adgang ved yderdøre
  • Dørbredde
  • Fælles adgangsveje
  • Elevator
  • Trapper i fælles adgangsveje
  • Værn ved trapper, altaner, osv.
SBi-anvisning 216, Anvisning om Bygningsreglement 2008 (Stang, 2009), SBi-anvisning 222, Tilgængelige boliger (Sigbrand & Jensen, 2008), DS 3028, Tilgængelighed for alle (Dansk Standard, 2001) samt Tjeklister for tilgængelighedwww.sbi.dk giver anvisninger på, hvordan kravene til tilgængelighed kan opfyldes.
Bemærk, at:
  • Bekendtgørelse om tilgængelighedsforanstaltninger i forbindelse med ombygninger i eksisterende byggeri (Bekendtgørelse nr. 1250, 2004), og 
  • Vejledning til kommunerne om byggesagsbehandling af tilgængelighedsbestemmelser (Erhvervs- og Byggestyrelsen, 2008)
ikke gælder for boliger og dermed heller ikke for ombygning til tagboliger. Dette understreges, idet SBi's undersøgelser om kendskabet til disse ombygningsbestemmelser har vist, at der har hersket i tvivl herom.
Ved ombygning kan kommunen godkende, at bygningsreglementets krav om bygningers indretning lempes, herunder kravet om tilgængelighed. Det forudsætter dog, at opfyldelsen af indretningskravene skønnes at kræve gennemgribende ændringer i bygningen.

3.3.2 Indgangsparti

Hvis indgangspartiet ombygges i forbindelse med etableringen af tagboliger, skal man være opmærksom på krav i BR08, kap. 3.2.1, stk. 2, om niveaufri adgang, et vandret og markeret areal foran døren, samt en porttelefon.

3.3.3 Trapper

Ældre ejendomme er traditionelt udført med en hovedtrappe og en bagtrappe. De to trapper blev bygget for at sikre en flugtvej ud af bygningen i tilfælde af, at en brand blokerede hovedtrappen. I dag opføres nybyggeri i reglen kun med en enkelt trappe, der så til gengæld udgør en selvstændig brandsektion og er opført af ubrændbare materialer – typisk beton.
Trappeadgang til tagboligerne kan ske via de eksisterende trapper, som enten skal forlænges (ekstra etage) eller forbedres (tagboliger på loftrum). Adgang kan også etableres via separate elevator- og trappetårne.
Trappen skal have en bredde på mindst 1,0 m og kan gøres tilgængelig ved at etablere gribeegnede håndlister i begge sider af trappen samt markere trinforkanterne med kontrastfarve af hensyn til svagsynede. Disse markeringer vil i en evakueringssituation være til gavn for alle, se afsnit 3.5, Flugtveje og redningsforhold. For at undgå at uopmærksomme personer og synshandicappede støder hovedet mod undersiden af trappen, bør trappens underside afskærmes. Krav til trapper og værn er nærmere beskrevet i BR08, kap. 3.2.2 og 3.2.3 (Erhvervs- og Byggestyrelsen, 2009). Kravet til trappens bredde er bl.a. affødt af, at man skal kunne få en båre med en person på ned ad trappen.
Se også tjeklister for tilgængelighed på:
www.sbi.dk/tilgaengelighed/tjeklister.

3.3.4 Adgang via eksisterende trappeopgang

Benyttes den eksisterende (hoved)trappe som adgang til tagboligerne, vil det ofte være anledning til at renovere trappeopgangen. En smal og nedslidt trappeopgang er ikke indbydende for en køber af en ny tagbolig eller en dyr penthouselejlighed. Det er derfor afgørende, at trappeopgangen har en kvalitet, som stemmer overens med tagboligen.
Nedslidt bagtrappe.
Figur 88. Nedslidt bagtrappe. Foto: rönby studio.
Hovedtrappe før indbygning af elevator.
Hovedtrappe efter indbygning af elevator
Figur 89. Hovedtrappe før og efter indbygning af elevator. Østbanegade, København. Foto: rönby studio.
Særligt i ældre etageejendomme vil det ofte være nødvendigt at forbedre adgangsforholdene, idet trappen til loftet typisk ikke lever op til dagens krav til bredde, hældning og brandsikring. Det gælder, uanset om adgangen til loftet inden ombygningen sker via hoved- eller bagtrappe. I ejendomme, hvor tagboliger etableres ved at tilføje en ekstra etage, vil den primære opgave bestå i at forlænge den eksisterende trappe. Der vil typisk være tale om nyere boligbyggeri med fladt tag og kun én trappe, typisk af beton.
Uanset om en eksisterende hoved- eller bagtrappe forlænges, eller en ny intern trappe benyttes, bør man så vidt muligt placere trappen, så man griber mindst muligt ind i træbjælkelaget mellem loftrum og eksisterende lejligheder.

3.3.5 Ændret anvendelse af bagtrappe

Det kan være relevant at anvende bagtrappehuset i en eksisterende ejendom til andre formål – fx til en elevator til alle etager eller til en udvidelse af boligarealet i opgangen. Ofte vil man kunne nedlægge bagtrappen, hvis man sikrer hovedtrappen tilstrækkeligt mod brand. Hvis hovedtrappen er af beton, behøver man typisk ikke at gøre noget. Hvis den er af træ, skal man enten udskifte den, installere trapperumssprinkling og/eller beklæde trappen med gipsplader, som beskrevet i afsnit 2.6, Brandsikring samt Brandsikring af trætrapper ved brug af sprinkling (Socialministeriet, 2007) og Ny forskrift udvider mulighederne for trapperumssprinkling i ældre beboelsesejendomme (Kristensen, 2007). En udskiftning af trappen kan afføde behov for indgreb i bygningens bærende og afstivende konstruktion. 
Bagtrappe, Blågårdsgade, København. Nedlægges og erstattes af elevator.
Figur 90. Bagtrappe, Blågårdsgade, København. Nedlægges og erstattes af elevator. Foto: rönby studio.
Elevator indrettet i bagtrapperum. Der er direkte udgang til lejlighederne. Esplanaden, København.
Figur 91. Elevator indrettet i bagtrapperum. Der er direkte udgang til lejlighederne. Esplanaden, København. Foto: rönby studio.
Det er kommunalbestyrelsen, der fastlægger de nødvendige tiltag for at nedlægge bagtrappen. Man skal bl.a. være opmærksom på kravene til flugtveje fra lejlighederne. Et eksempel på lokale retningslinjer er beskrevet af Århus Kommune i Retningslinjer for nedlægning af bagtrapper (Bygningsinspektoratet, 2009b). Yderligere eksempler kan findes i Brandsikring af trætrapper ved brug af sprinkling (Socialministeriet, 2007).
En række kommuner har en standardvejledning med betingelser, der skal opfyldes, for at tillade nedlæggelse af trapper. I store træk er følgende fælles for vejledningerne, jf. Brandsikring af trætrapper ved brug af sprinkling):
  • hovedtrappen skal som minimum være bygningsdel klasse R 30 D-s2,d2 [BD-bygningsdel 30 af materialer som er mindst klasse B materiale] med beklædning klasse K1 10 B-s1,d0 [klasse 1 beklædning].
  • omgivende vægge skal minimum være bygningsdel REI 60 A2-s1,d0 eller bygningsdel EI 60 A2-s1,d0 [BS-bygningsdel 60].
  • entredøre skal være dør klasse EI2 30 [BD-dør 30 M]. (Frederiksberg Brandvæsen,1977) angiver, hvordan eksisterende døre kan forbedres, så de opfylder dette krav. Fx skal glas i døre dækkes med 12 mm krydsfiner eller spånplade på den ene side, eller det skal og erstattes med 22 mm massivt træ.
  • der må ikke findes gas- eller el-installationer i skabe i trapperummet.
  • adskillelse mod kælder skal mindst være bygningsdel klasse REI 60 A2-s1,d0 eller bygningsdel EI 60 A2-s1,d0 [BS-bygningsdel 60], evt. bygningsdel klasse REI 90 eller bygningsdel EI 90 [BD-bygningsdel 90] med eventuelle døre som dør klasse EI2 60-C A2-s1,d0 [BS-dør 60].
  • der skal etableres røgudluftning øverst i trappeskakten eller via oplukkelige sidelysvinduer.
Supplerende krav for bygninger med gulv i øverste etage mere end 9,6 m over terræn:
  • boliger i tagetagen skal have 1 m2 redningsaltan eller kvist egnet til redning.
  • adgang til kælder må kun ske gennem luftsluse.
Hvis loftetagen udnyttes ved at udvide eksisterende lejligheder opad, er der ikke noget krav om elevatorer, dvs. bagtrappen kan bevares og hovedtrappen behøver af samme grund ikke at blive ombygget. Hvis adgang til loftet hidtil er sket via bagtrappen, kan den del af bitrappen nedlægges og erstattes af interne trapper i de enkelte boliger.

3.3.6 Adgang via separat trappetårn

I stedet for at forlænge eller forbedre den eksisterende trappe kan man vælge at etablere et separat trappe- og elevatortårn til tagboligerne. Det vil typisk være aktuelt i de tilfælde, hvor man vælger kun at etablere elevator til tagboligerne.
Vælges løsningen med adgang til tagboliger ad udvendige trapper, skal man være opmærksom på bygningsreglementets anbefaling om enten at undgå trin med gitterriste eller vælge gitterdimensioner på 9 mm, som er lidt under diameteren på de tyndeste blindestokke. Ligeledes bør trinflader med fx drænhuller i metalplader undgås, da de kan give risiko for at førerhundes kløer rives af. Se BR08, kap. 2.6.3, stk. 3 (Erhvervs- og Byggestyrelsen, 2009).
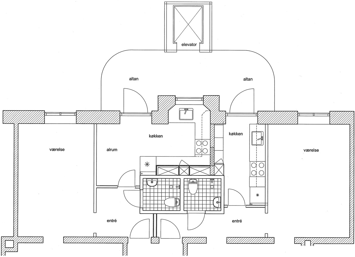
Eksempel på ombygning af bagtrapperum til køkken samt etablering af elevatoradgang via nye altaner med direkte adgang fra køkken.
Figur 92. Eksempel på ombygning af bagtrapperum til køkken samt etablering af elevatoradgang via nye altaner med direkte adgang fra køkken. (Erhvervs- og Boligstyrelsen, 2004a). Kilde: Pålsson Arkitekter AS.

3.4 Elevator

Bygningsreglementet stiller krav om elevator til boliger, der ligger på 2. sal (3. etage) eller højere, BR08, kap. 3.2.2, stk. 5 (Erhvervs- og Byggestyrelsen, 2009). Det betyder i praksis, at der i forbindelse med alle tagboligprojekter som udgangspunkt skal installeres elevator til samtlige etager, kælderen dog undtaget. Etablering af elevatorer til samtlige etager er en stor investering og kan være teknisk kompliceret at gennemføre pga. pladsforholdene. Omvendt kan beslutningen om at etablere tagboliger igangsætte etablering af elevatorer, idet elevatorer kan medvirke til at gøre ejendommen mere attraktiv eller anvendelig for såvel nuværende som kommende beboere og deres gæster. Se afsnit 1, Årsager og motivation i SBi-anvisning 225, Etablering af tagboliger (Hansen & Andersen, 2009).
Der er ikke noget elevatorkrav, hvis man vælger en løsning, hvor loftetagen udnyttes ved at udvide eksisterende boliger opad.

3.4.1 Muligheder og begrænsninger

I ældre etageboligbyggeri i bykernen, hvor tagboliger etableres ved ombygning af et eksisterende loftrum, er der begrænset plads omkring bygningen og ingen fri gavl. Elevatortårnene vil typisk blive opført ud for eller som erstatning for et bagtrapperum som vist på figur 93-95, idet der sjældent er plads inde i hovedtrapperummet, og man ikke ønsker at inddrage dele af lejlighederne til en elevatorskakt. Se afsnit 3.3, Adgangsforhold, og afsnit 3.5, Flugtveje og redningsforhold, vedrørende problematikken omkring nedlæggelse af bagtrappen.
Elevatortårn på gårdsiden af ældre byggeri.
Figur 93. Elevatortårn på gårdsiden af ældre byggeri. Foto: sbs.
 Indvendig elevator i bagtrapperum.
Figur 94. Indvendig elevator i bagtrapperum. Kilde: Kuben Byfornyelse Danmark og rönby studio.
Elevator indsat i bagtrapperum.
Figur 95. Elevator indsat i bagtrapperum. Foto: sbs.
Elevatortårn med forbindelse til altaner.
Figur 96. Elevatortårn med forbindelse til altaner. Foto: sbs.
Elevator påbygget mellem altaner.
Figur 97. Elevator påbygget mellem altaner. Kilde: Kuben Byfornyelse Danmark og rönby studio.
 Elevatortårn med forbindelse til altaner.
Figur 98. Elevatortårn med forbindelse til altaner (Erhvervs- og Boligstyrelsen, 2004a).
Foto: Tegnestuen Jens V. Nielsen.
I ejendomme med altaner kan det være en mulighed at placere elevatortårnet, så der opnås elevatoradgang til boligerne via altanen, som vist på figur 96-98.
Boligblokke med fladt tag, hvor tagboliger etableres på en ny etage, er normalt af nyere dato. Her har man flere muligheder for at placere et eller flere elevatortårne, især hvis det accepteres, at det kun er de nye lejligheder, der får adgang til en elevator.
Bygningsreglementet giver dog mulighed for, at kommunalbestyrelsen i ombygningssager, hvortil tagboligprojekter regnes, kan lempe elevatorkravet. I forbindelse med byggetilladelsen kan kommunalbestyrelsen give tilladelse til anvendelse af såkaldte minielevatorer (BR08, kap. 3.2.2, stk. 6) (Erhvervs- og Byggestyrelsen, 2009), eller på anden måde lempe bestemmelserne. Det er dog kun muligt, hvis det skønnes, at en type 2 elevator kræver gennemgribende ændringer i bebyggelsen, fx flytning af bærende vægge (BR08, kap. 3.1 stk. 2). 
Denne bestemmelse giver bl.a. mulighed for kun at stille krav om elevator til tagboligerne. Det kan i visse byggerier gøre det muligt at benytte en løsning, hvor et elevatortårn placeres ved gavlen, og tagboligerne betjenes via en svalegang, uanset at det vil være en utilfredsstillende løsning for beboerne i de eksisterende boliger. Kommunalbestyrelsen kan dog kun give dispensation fra kravet om elevator af tekniske årsager og ikke af økonomiske grunde. Se også SBi-anvisning 225, Etablering af tagboliger, 7.3.1 Myndighedskrav (Hansen & Andersen, 2009).
 Kombineret elevator- og trappetårn med forbindelse til svalegang.
Figur 99. Kombineret elevator- og trappetårn med forbindelse til svalegang. Tårnet er placeret væk fra bygningen for at reducere støjgener. Kilde: Arkitekt Steen Pedersen.
Konstruktionsmæssigt skal man primært sikre sig, at elevatorkonstruktionen forankres til bygningen. Desuden bevirker Arbejdstilsynets krav om personsikkerhed i forbindelse med tekniske eftersyn og vedligehold af elevatoren, at elevatorskakten i mange tilfælde vil komme til at rage op over ejendommens tag, ligesom der skal etableres en grube under skakten. Hvis elevatoren etableres inde i den eksisterende bygning og ikke skal gå helt ned i kælderen, kan kælderarealet under elevatoren eventuelt benyttes som grube. Se også hjemmesiden for Grundejernes Investeringsfonds projekt om minielevatorer: (www.ejendomsviden.dk).

3.4.2 Minielevatorer

Som nævnt åbner bygningsreglementet mulighed for at anvende minielevatorer i visse tilfælde. Ved en minielevator forstås i bygningsreglementet en elevator, der er indrettet efter Bekendtgørelse om indretning af elevatorer (Bekendtgørelse nr. 678, 2008), som implementerer Elevatordirektivet, men hvor et eller flere af de indvendige mål ligger under dimensionerne for en type 2 elevator efter DS/EN 81-70 (Dansk Standard, 2003). Grundejernes Investeringsfond har gennemført en undersøgelse af minielevatorer og konkluderer efter forsøg med 23 rollatorbrugere, at en elevatorstol på 0,9 × 0,9 m kan anvendes af en person med rollator.
Andre løsninger, såsom løfteplatforme, kan ikke benyttes, da de ikke opfylder gældende regler i Bekendtgørelse om indretning af elevatorer. Ved en løfteplatform, trappeløbselevator eller trappelift forstås løfteudstyr til persontransport, som er indrettet efter reglerne i (Bekendtgørelse nr. 612, 2008), som implementerer Maskindirektivet.
Grundejernes Investeringsfond har udgivet to vejledninger, (Grundejernes Investeringsfond, 2005b, 2005c), med regler og bestemmelser for indbygning af minielevatorer. Se også http://ejendomsviden.dk/minielevatorer.

3.4.3 Niveaufri adgang til elevator

Bygningsreglementet stiller, i overensstemmelse med DS 3028, krav om niveaufri adgang, se BR08, kap. 3.2.1, stk. 2 (Erhvervs- og Byggestyrelsen, 2009), og Tilgængelighed for alle (Dansk Standard, 2001). Det betyder, at der ikke må være trin op til elevatoren. I ældre ejendomme er der ofte 2-3 trin op til stueetagen fra gadesiden. En højdeforskel der ofte ikke kan udlignes hverken inde i bygningen eller ude på fortovet. Derimod kan der muligvis etableres niveaufri adgang til elevatoren fra gårdsiden. Et eksempel ses i figur 91, afsnit 3.3.
Er det helt umuligt at etablere niveaufri adgang til elevatoren, vil 2-3 trin kunne overvindes af nogle ældre og gangbesværede, som ikke benytter rollator. Derfor har en elevator altid stor værdi uanset adgangsforholdene.
Bygningsreglementet stiller krav om, at fælles adgangsveje skal have en fri bredde på mindst 1,3 m, dvs. at der foran elevatordøre skal være et areal på mindst 1,3 m × 1,3 m. Se BR08, kap. 3.2.2 stk. 1 (Erhvervs- og Byggestyrelsen, 2009). Hvis kørestolsbrugere skal kunne vende, er dette krav i underkanten, men en rollatorbruger vil kunne vende 180°. Er der for lidt plads, kan arealet nedsættes til 1,1 × 1,1 m, hvis rollatorbrugere kun skal vende 90°. Se DS 3028, Tilgængelighed for alle (Dansk Standard, 2001).

3.4.4 Betjening af elevator

Betjeningen af elevatorer skal udformes i henhold til DS/EN 81-70 (Dansk Standard, 2003), uanset om det er en type 2 elevator eller mindre. Det betyder bl.a., at betjeningsknapper skal være følbare, at tal og bogstaver for etager skal kunne ses og føles, at det kan høres og føles, når knapper aktiveres, og at en stemme oplyser hvilken etage, der stoppes på. Desuden er der krav til placering af betjeningsknapper både ud- og indvendig, jf. SBi-anvisning 216, Anvisning om Bygningsreglement 2008 (Stang, 2009).

3.5 Flugtveje og redningsforhold

I tilfælde af brand skal det være muligt på en let og betryggende måde ved egen eller andres hjælp at kunne komme direkte ud til det fri eller til et sikkert sted i bygningen. Det kan ske via et vindue (redningsåbning) eller via flugtveje. Se BR08, kap. 5.2. Et sikkert sted vil typisk være en anden brandsektion end den, hvor branden er opstået, og hvorfra der er adgang til en flugtvej eller direkte til terræn i det fri.
Ved etablering af tagboliger skal man være særlig opmærksom på placering af redningsåbninger i tagfladen, jf. afsnit 3.5.2, Redningsåbninger
Flugtveje er et sammenhængende system af passager, gangarealer og trapper, der så vidt muligt udelukkende er indrettet til trafik. Etableringen af tagboliger er en anledning til at gennemgå, om disse forhold er tilfredsstillende, ikke mindst hvis bagtrappen nedlægges. Det skyldes, at der altid skal være to uafhængige måder at forlade en bygning på.
Da en flugtvej skal kunne anvendes i hele evakueringsperioden, er det vigtigt, at den udgør en selvstændig brandmæssig enhed. Kravene til flugtveje og redningsforhold skal ses i sammenhæng med kravene til brandsikring. I øvrigt henvises til kap. 2 i Eksempelsamling om brandsikring af byggeri (Erhvervs- og Byggestyrelsen, 2006).

3.5.1 Trapper som del af en flugtvej

Ældre ejendomme er traditionelt udført med en hovedtrappe og en bagtrappe, begge i brændbart materiale. De to trapper skulle sikre en flugtvej ud af bygningen i tilfælde af, at en brand blokerede den ene trappe. Ofte ser man, at bagtrappen nedlægges i forbindelse med etablering af tagboliger, fordi det giver plads til et elevatortårn. Det kræver, at der i stedet etableres redningsåbninger, typisk i form af vinduer af en vis størrelse i en ydervæg, jf. afsnit 3.5.2, Redningsåbninger.
For at sikre, at en trappe kan fungere som flugtvej og er tilgængelig for redningsberedskabet, er der krav til brandmodstandsevnen af både trappen og de omgivende konstruktioner, ligesom der er krav om fremkommelighed. Hvis gulvet i bygningens øverste etage er mere end 9,6 m over terræn (mere end 4 etager), er der også krav om, at der ikke må være direkte døradgang mellem trapperum og kælder. Adgang til kælder skal i stedet ske ved at passere det fri eller gennem en luftsluse, se Eksempelsamling om brandsikring af byggeri (Erhvervs- og Byggestyrelsen, 2006). Kravet gælder dog ikke, hvis kælderen ikke har stor brandbelastning i form af oplag, pulterrum m.m. Brandsikring af trætrapper ved brug af sprinkling (Socialministeriet, 2007) giver en samlet beskrivelse af kravene til trapper som flugtvej.
Trapper, der fungerer som flugtvej, skal opfylde kravene til fælles adgangsveje i BR08, kap. 3.2.2 (Erhvervs- og Byggestyrelsen, 2009). Det betyder bl.a., at trappen bør have lige trappeløb, da det tager længere tid at anvende en spindel- eller vindeltrappe. Bredden af trapper skal være mindst 1,0 m og SBi-anvisning 216, Anvisning om Bygningsreglement 2008 (Stang, 2009) anbefaler, at hovedreposer bør have en fri bredde på mindst 1,3 m.
Det er vigtigt at være opmærksom på, at hovedtrappen overholder disse krav, hvis bagtrappen nedlægges. Man skal også være opmærksom på, at døre i flugtveje skal være lette at åbne uden brug af nøgle eller værktøj (BR08, kap. 5.2, stk. 3), samt at flugtvejsdøre overholder kravene til døre generelt (BR08, kap. 3.2.1, stk. 3), herunder at minimumsbredden er 0,77 m. For at personer med nedsat kraft i fingre og hænder skal kunne åbne døre i flugtveje, anbefales det, at dørene kan betjenes med en lukket hånd.
Flere kommuner giver rutinemæssigt dispensation fra bygningsreglementet i forbindelse med ansøgning om nedlæggelse af bagtrapper. Se eksempler på retningslinjer i afsnit 3.3.5, Ændret anvendelse af bagtrappe.

3.5.2 Redningsåbninger

En redningsåbning har tre funktioner:
  • give personer, der opholder sig i bygningen, mulighed for at give sig til kende over for redningsberedskabet.
  • personredning, eventuelt via redningsberedskabets stiger, hvis flugtvejene i bygningen er blokerede.
  • røgudluftning.
Et rum i en bolig vil normalt ikke udgøre en selvstændig brandcelle, typisk vil tagboligen under ét udgøre en brandcelle. Det vil sige at hvert opholdsrum bør have mindst én redningsåbning for at bevare muligheden for personredning, hvis en person fanges i rummet. Undtagelser fra denne regel kan fx være opholdsrum, hvor der gennem døre er adgang til redningsåbninger i to naborum, der ikke er i åben forbindelse med hinanden, og rum med to uafhængige flugtveje, jf. SBi-anvisning 216, Anvisning om Bygningsreglement 2008, 5.2 Flugtveje og redningsforhold (Stang, 2009), stk. 6. Redningsåbninger er udelukkende et supplement til flugtvejene fra brandcellen og kan derfor ikke erstatte en flugtvej.
Rum med to uafhængige flugtveje, hvor redningsåbning derfor ikke er nødvendig.
Figur 100. Rum med to uafhængige flugtveje, hvor redningsåbning derfor ikke er nødvendig. Kilde: SBi-anvisning 216, Anvisning om Bygningsreglement 2008 (Stang, 2009).
En redningsåbning er typisk et vindue i en ydervæg. Normalt skal der være mindst én redningsåbning i hvert opholdsrum i boligen. I boliger med gulv i øverste etage mere end 9,6 m over terræn skal der være mindst én facade med redningsåbning mod brandredningsareal. I tagetagen skal der være en kvist eller redningsaltan, der vender mod redningsarealet.
En redningsåbning skal have en fri højde og bredde på tilsammen 1,5 m, hvor højden er mindst 0,6 m og bredden mindst 0,5 m. Kap. 2.7 i Eksempelsamling om brandsikring af byggeri (Erhvervs- og Byggestyrelsen, 2006) giver en nøjere beskrivelse af dimensionering, udførelse og placering af redningsåbninger.
 Bestemmelse af fri højde og bredde på redningsåbninger.
Figur 101. Bestemmelse af fri højde og bredde på redningsåbninger.
Kilde: SBi-anvisning 216, Anvisning om Bygningsreglement 2008 (Stang, 2009).
I bygninger, hvor gulv i øverste etage er mere end 9,6 m over terræn, kan det være vanskeligt at nå redningsåbninger i tagfladen. Redningsåbningen bør da i åben stilling have en fri højde, der ikke er mindre end 0,8 m, idet redningsberedskabet i disse tilfælde skal anvende en motorstige. Desuden må den vandrette afstand mellem tagkant og underkant af åbningen ikke overstige 1,4 m, jf. Eksempelsamling om brandsikring af byggeri, kap. 2.7.2 (Erhvervs- og Byggestyrelsen, 2006). I praksis betyder det, at det kan være vanskeligt at etablere redningsåbninger fra et spidsloft, som er inddraget i en bolig.
Figur 102 viser et eksempel, hvor der er etableret nye kviste på et tag, sandsynligvis i forbindelse med at tørreloftet er indrettet til tagbolig i to etager. Her er der risiko for, at redningsberedskabets stiger ikke kan nå de øverste kviste, og at disse derfor ikke kan anvendes som redningsåbninger.
Kviste som redningsåbninger ved ombygning af loftrum til tagboliger.
Figur 102. Kviste som redningsåbninger ved ombygning af loftrum til tagboliger.
Foto: Dansk Brand- og sikringsteknisk institut.
Særlige forhold gør sig gældende, hvis gulvet i øverste etage er beliggende mere end 22 m over terræn, eller hvis ikke alle redningsåbninger kan nås af redningsberedskabets stiger, som beskrevet i BR08, kap. 5.2, stk. 8 (Erhvervs- og Byggestyrelsen, 2009) samt i afsnit 2.6, Brandsikring.
Brug af redningsåbninger som flugtvej stiller krav til udformningen af bebyggelsens udeareal, idet en del af dette skal kunne fungere som brandredningsareal, jf. afsnit 2.6.8, Redningsberedskabets indsatsmulighed.

3.6 Parkering og udearealer

I forbindelse med etablering af tagboliger er der behov for at tage stilling til:
  • om det nødvendige antal parkeringspladser er til stede.
  • om adgangs- og opholdsarealer er indrettet hensigtsmæssigt.

3.6.1 Parkeringspladser

Når tagboliger etableres, vil behovet for parkeringspladser naturligvis øges tilsvarende, medmindre der er tale om at udvide eksisterende lejligheder opad. Hvis ejendommen har sit eget parkeringsareal, må man derfor forvente, at kommunalbestyrelsen vil forlange flere p-pladser udlagt, herunder også handicap p-pladser. Har ejendommen derimod ikke sit eget reserverede parkeringsareal, som det ofte ses i byerne, vil det ikke være rimeligt at forlange reserverede p-pladser til de nye tagboliger.
Antallet af parkeringspladser fastsættes af kommunalbestyrelsen i flg. BR08, kap. 2.6.2, stk. 2 (Erhvervs- og Byggestyrelsen, 2009). Typisk forlanges 1,5 p-plads pr. lejlighed. Ved udvidelse af et eksisterende parkeringsareal skal 'et passende antal' p-pladser kunne benyttes af personer med handicap (BR08, kap. 2.6.2, stk. 3). SBi-anvisning 216, Anvisning om Bygningsreglement 2008, 2.6.2 Parkeringsarealer (Stang, 2009) beskriver, hvordan 'et passende antal' kan fortolkes. Bygningsreglementets vejledningstekst beskriver kravene til:
  • Nødvendig størrelse (personbil 3,5 × 5,0 m, kassebil 4,5 x 8,0 m).
  • Placering (nær indgang).
  • Niveaufri adgang fra handicap p-plads til adgangsvejen frem til indgangen. 
Ved ældre ejendomme er der normalt ikke udlagt handicap p-pladser, idet dette ikke var et krav i bygningsreglementet på det tidspunkt, ejendommen blev opført. Hvis parkeringsarealet udvides, vil det derfor være en god idé at udlægge handicap p-pladser i et forhold svarende til det totale antal p-pladser – og ikke kun det nye antal. Begrundelsen for denne anbefaling er, at ejendommens øvrige lejligheder ved etablering af elevatoradgang til disse kan bebos og/eller besøges af folk med gangbesvær.
Kan elevatoren ikke rumme kørestolsbrugere, vil det være rimeligt kun at etablere handicap p-pladser til personbiler – ikke kassebiler, idet sidstnævnte som regel benyttes af kørestolsbrugere.

3.6.2 Adgangsveje til/fra parkeringspladser

For at gangbesværede kan nå frem til elevatoren, bør man gennemgå ruten frem til denne med fokus på eventuelle kantsten og trin. I bygningsreglementet er der således krav om, at der ikke må være niveauspring på ruten fra vej og p-plads frem til bebyggelsens indgang, se BR08, kap 2.6.3, stk. 2 (Erhvervs- og Byggestyrelsen, 2009). Desuden kan ruten med fordel gennemgås mht. kravene om adskillelse af trafikformer og markering af adgangsveje. Se BR08, kap. 2.6.3, stk. 3. Se også afsnit 3.3, Adgangsforhold.
Hvis det er muligt, anbefales det at etablere niveaufri adgang fra elevator til bebyggelsens opholdsarealer, så flest mulige brugere får glæde af arealerne.

3.6.3 Opholdsarealer

Da tagboliger etableres på en eksisterende boligbebyggelse, må man som udgangspunkt forvente, at der er etableret de nødvendige opholdsarealer i form af legeplads, gårdrum og lign. Medmindre der er tale om at udvide lejligheder opad, vil etablering af tagboliger øge antallet af beboere, hvilket naturligvis vil øge brugen af opholdsarealerne. I de fleste tilfælde er der ikke mulighed for at udvide opholdsarealerne, men etablering af tagboliger kan være en anledning til at gennemgå opholdsarealerne, så de bliver mere tidssvarende og mere hensigtsmæssigt indrettet.
Samtidig skal man være opmærksom på, at etablering af tagboliger kan resultere i et skærpet krav til brandredningsarealer som følge af, at bygningshøjden øges, eller fordi bagtrappen nedlægges i samme forbindelse. Dette er beskrevet i afsnit 2.2, Brandsikring og i BR08, kap. 5.6.1.
Uderum i form af fælles tagterrasse og lign. er beskrevet i afsnit 3.1, Boligens indretning.